Продажа / Покупка: Продается офисное помещение по адресу г. Минск, Коласа ул., д. 37, г. Минск,
Продается административное помещение в современном многофункциональном Бизнес-Центре "АЙСБЕРГ" по адресу Коласа, 37
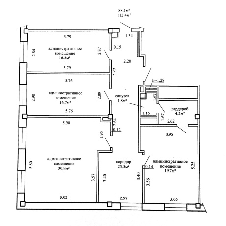
Четыре просторных помещения с зоной кухни и своим сан/узлом. Общая площадь 115,5 м2. Расположение на 3 этаже
Имеется скоростной интернет
Юридический адрес
Отличная локация - близость метро и расположение на пересечении оживленных улиц Сурганова-Коласа, обеспечивает высокую деловую активность этого Квартала! Наличие кафе мест отдыха рядом.
Пол плитка
ОПЕРАТИВНЫЙ ПОКАЗ! Полное сопровождение сделки!
Лицензия: 02240/446 от 11.07.2022, Министерство юстиции РБ
- Площадь: 115 м2
- Этаж: 3
- Ремонт: Есть
- Интернет: Скоростной
- Охрана: да
- Парковка: да
- Режим работы здания: 24/7
- Близость к метро: Академия наук
- Питание: магазин
- Контактное лицо: Фаттория
- Телефон: +375 29 610-16-86
- Телефон: +375 29 610-16-86
- Вид сделки: Предложение


в избранное






















































