Продажа / Покупка: Продается офисное помещение по адресу г. Минск, Монтажников 4-й пер., д. 5, г. Минск,
Продается административное помещение 245 м2, пер. 4-й Монтажников, 5
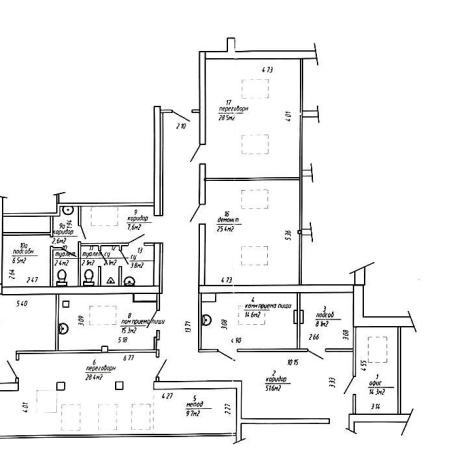
Помещение с ремонтом и полностью готово под использование Вашего бизнеса.
Грамотная планировка состоит из 7 изолированных помещений, кухни, просторного коридора и 4 санузлов.
Помещение находится на 4 этаже. (мансардный). Имеется два входа, один из которых отдельный.
Достаточное кол-во парковочных мест.
Удобный выезд на МКАД.
Лицензия: 02240/446 МЮ РБ, 11.07.2022
- Площадь: 246 м2
- Регион: Минск и район
- Населенный пункт: г. Минск
- Микрорайон: Сухарево
- Адрес: Монтажников 4-й пер. д. 5
- Контактное лицо: Фаттория
- Телефон: +375 29 657-62-74
- Телефон: +375 29 657-62-74
- Вид сделки: Предложение


в избранное



































