Аренда: Аренда склада 270 - 595,5 м2 д Байдаки 1В, Байдаки,
Сдаётся в аренду часть склада с открытой площадкой, расположенный на огражденной территории в деревне Байдаки.
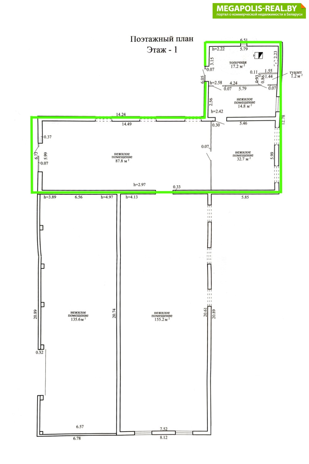
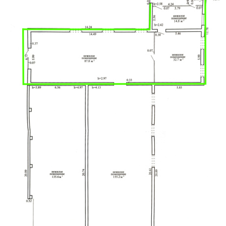
Площадь отапливаемой части здания: 153.7 кв.м. + хозблок 86 кв.м. (неотапливаемый).
Площадь земельного участка: 0.2523 Га.
Имеются удобные подъездные пути с асфальтовым покрытием для грузовых/фур.
Проведённая электрическая мощность – 15 кВт с возможностью увеличения до 39 кВт.
Проведены все коммуникации:
- электроснабжение;
- водоснабжение;
- отопление (своя котельная и электрокотельная);
- канализация,
- оптоволокно;
- видеонаблюдение;
- вывод рекламного билборда на трассу.
Логистика: прямой выезд на трассы M6 (направление Гродно); Е28 (направление Ошмяны/Вильнюс). Остановка общественного транспорта прямо у склада.
Арендатор не оплачивает услуги агентства.
- Год постройки: 2014
- Площадь: 595 м2
- Земельный участок: 25,23
- Этажность здания: 1
- Высота потолков: 5
- Мощность электричества: 15
- Отопление: +
- Режим работы здания: 24/7
- Интернет: есть
- Регион: Минск и район
- Населенный пункт: Байдаки
- Район: Минский
- Направление от МКАД: Раковское
- Адрес: - 1В
- Контактное лицо: Александр
- Вид сделки: Предложение
- Цена: без НДС
- Форма собственности: Частная
- Стоимость коммунальных услуг
(за все помещение):В отопительный сезон: - руб.В неотопительный сезон: - руб.


в избранное
































