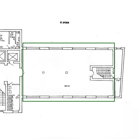
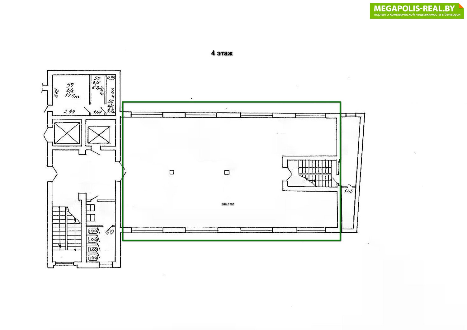
Аренда: Помещение 236,7 м2(аренда) ул Куйбышева 22, Минск,
Офис формата Openspace расположен на 4-м этаже административного здания. Общая площадь помещения 236,7 кв.м., возможно зонирование пространства и перепланировка под арендатора. Помещение подойдет для размещения офиса компании, сферы услуг, образовательного центра.
На период ремонтных работ предоставляется пониженная арендная ставка.
Выгодное месторасположение, удобное транспортное сообщение, развитая инфраструктура, быстрый доступ в любую точку города.
Если вас заинтересовало предложение,свяжитесь с нами для получения дополнительной информации и организации просмотра!
Арендатор не оплачивает услуги риэлтерской организации!
Подробнее...- Год постройки: 1963
- Площадь: 236 м2
- Офисные площади: Есть
- Этажность здания: 3-4
- Высота потолков: -
- Отопление: Есть
- Подъездные пути: Есть
- Парковка: да
- Режим работы здания: 24/7
- МФК: Куйбышева, 22
- Регион: Минск и район
- Населенный пункт: Минск
- Район: Центральный
- Микрорайон: Куйбышева
- Направление от МКАД: В черте Минска
- Адрес: Куйбышева 22
- Контактное лицо: Наталья Кревская
- Телефон: +375 29 380-85-85
- E-mail: marielt.komm@mail.ru
- Телефон: +375 29 380-85-85
- Вид сделки: Предложение
- Цена: с НДС
- Форма собственности: Частная
- Стоимость коммунальных услуг
(за все помещение):В отопительный сезон: - руб.В неотопительный сезон: - руб.


в избранное






















































































