Аренда: Производственное помещение со складами и офисами в аренду., Минск,
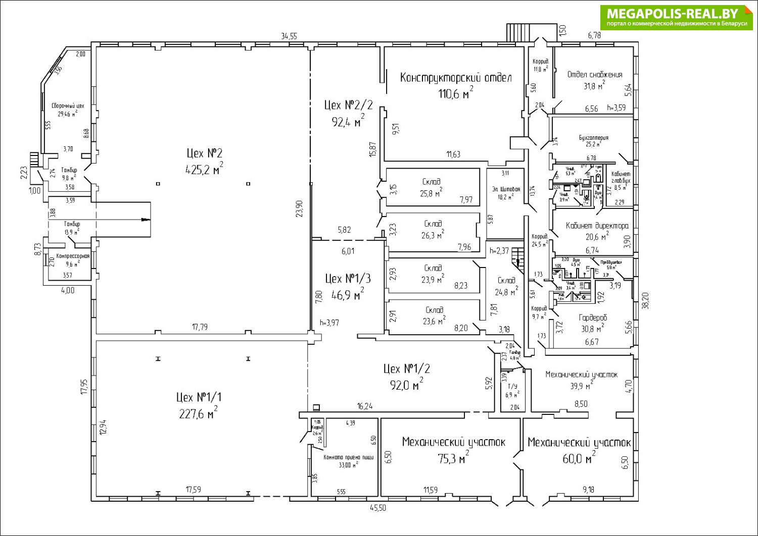
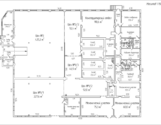
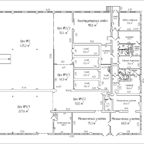
Производственное помещение около - 1088м, с отапливаемым складом -122м, (дополнительные склады из сэнвич панелей с отоплением инфракрасными обогревателями, с кран-балкой на 3т. а также неотапливаемые склады из металло профиля) офисами - 227, раздевалкой -30м, санузлом – 3шт, душем и т.д. Сдается в долгосрочную аренду от собственника с правом субаренды. Двухсменная работа Расположение в центре города, рядом АЗС, выезд на развилку ул. Могилевская- ул. Володько - пр-т Партизанский, охраняемая территория, зона парковки легковых авто., отопление (котельная газовая в 50м). Горячая холодная вода. Транспортная проходная. (фура заезжает). Размещалось металлообрабатывающее производство.
Элетроэнергия 1400 руб. - Летом. 5367 зимний период
Вода 60-70 рублей.
Тепло 194руб летний период. 4760 зимний период
Подробнее...- Год постройки: 1961
- Площадь: 1632 м2
- Земельный участок: 1,5
- Назначение: Производственное помещение со складами и офисами
- Офисные площади: 227
- Этажность здания: 1
- Высота потолков: до 8м
- Пол: бетонный
- Нагрузка на пол: 7 и более тонн/м2
- Вода/канализация: вода и канализация
- Мощность электричества: 954
- Отопление: Газовая котельная
- Вентиляция: Вентиляция есть
- Подъездные пути: Фура заезжает
- Парковка: да
- Рампа: нет
- Охрана: да
- Режим работы здания: двухсменный
- Количество телефонов: 3 телефонные линии
- Интернет: от Белтелеком
- Стеллажи: нет
- Видеонаблюдение: нет
- Наличие ЖД: нет
- Регион: Минск и район
- Населенный пункт: Минск
- Район: Октябрьский
- Микрорайон: Чкаловский
- Направление от МКАД: В черте Минска
- Адрес: ВОЛОДЬКО 6
- Контактное лицо: Вячеслав
- Телефон: +375 44 741-04-43

- E-mail: snab@modum-techno.by
- Телефон: +375 44 741-04-43
- Вид сделки: Предложение
- Цена: без НДС
- Форма собственности: Частная
- Тип договора: прямая аренда
- Стоимость коммунальных услуг
(за все помещение):В отопительный сезон: от 5670 руб.В неотопительный сезон: от 1750 руб.


в избранное

























