Аренда: Сдается производственное/складское помещение по адресу г. Минск, Дзержинского просп., д. 15, г. Минск,
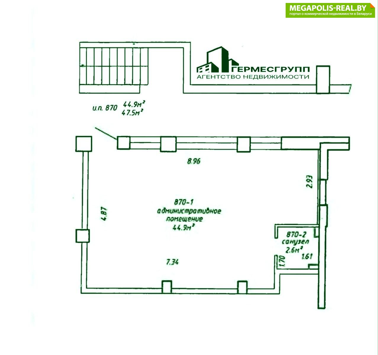
Свободное помещение на цокольном этаже с отделкой. пр. Дзержинского,15.
Отдельный вход, свой с/у.
Площадь 47,5 м2
Арендная ставка 31,84 руб с НДС за 1м2.
Помещения подойдут под торговлю, общественное питание, сферу услуг, а также иные бизнес-проекты.
Спешите занять свою бизнес-нишу в этой локации!
ООО "Агентство недвижимости ГермесГрупп». УНП 193776843. Лицензия Министерства Юстиции Республики Беларусь N 02240/487 от 07.08.2024 г.
- Площадь: 48 м2
- Регион: Минск и район
- Населенный пункт: г. Минск
- Микрорайон: Грушевка
- Адрес: Дзержинского просп. д. 15
- Контактное лицо: Дмитрий
- Телефон: +375 29 784-89-32
- Телефон: +375 29 784-89-32
- Вид сделки: Предложение


в избранное
















