Продажа / покупка: Продается производственное/складское помещение по адресу д. Захаричи, ,, д. Захаричи,
Продается склад продукции (с холодильниками) 20 км от Минска, Молодечненское направление и 1 км от Заславля.
Готовый бизнес с двумя источниками дохода на 3 гектарах в 1 км от Заславля. Цена указана с НДС.
Мы продаем не просто участок с постройками, а действующее предприятие с налаженными процессами и готовой продукцией. Ваш будущий доход заложен уже сегодня.
Земельный участок 3 гектара в д. Захаричи ( Целевое назначение - Земельный участок для организации подсобного сельского хозяйства)– это работающий агробизнес «под ключ».
Основной Бизнес №1: Выращивание в автоматизированной теплице.
· Проверенная ниша: Налаженное производство тюльпанов (или других культур).
· Полная автоматизация: Управление вентиляцией, отоплением и поливом со смартфона.
· Эффективная инфраструктура: Своя скважина, мощная топочная с котлом 99 кВт.
Основной Бизнес №2: Коммерческие посадки туй.
· Ценный актив: На территории высажены многочисленные туи, предназначенные для реализации.
· Готовая продукция: Вы получаете не "потенциал", а конкретный товар, который можно сразу продавать.
· Диверсификация рисков: Два независимых направления бизнеса на одной территории.
Готовая инфраструктура для масштабирования:
· Мощная топочная 99 кВт с автоматикой и удаленным управлением.
· Собственная водоподготовка: Скважина + накопительные емкости на 12 тонн.
· Современный холодильник с дистанционным управлением для хранения продукции.
· Комфортабельный офис для сотрудников и ведения документации.
· Полная коммуникация: Электричество 380В, газ по улице, оптоволокно.
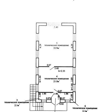
На участке расположено капитальное строение общей площадью 122,2 кв. м, идеально подходящее для хранения продукции с особым температурным режимом.
· Холодильный блок (1-й этаж, 61,6 кв.м): Здесь размещено основное сердце склада — просторный холодильник. Помещение оснащено прецизионным кондиционером и принудительной вентиляционной вытяжкой, что гарантирует равномерное распределение температуры. Управление климатом выведено на новый уровень — задавать и контролировать температурный режим хранения можно дистанционно, прямо со смартфона.
· Офисно-бытовой блок (2-й этаж, 61,6 кв.м): Второй этаж продуман для максимальной эффективности работы. Здесь расположены:
· Помещения с зоной приемы пищи для комфортного отдыха сотрудников.
· Продуманное офисное пространство для продуктивной работы.
· Кладовая для хранения инвентаря.
· Собственный санузел с установленным бойлером (горячая вода постоянно).
· Автономное отопление (электрический котел).
· Работает местная канализация.
Конструктивные особенности и безопасность:
Здание возведено на надежном ленточном фундаменте. Стены из газосиликатного блока (30 см) тщательно утеплены и защищены финишной отделкой (корник), что обеспечивает отличную термоизоляцию. Установлены энергоэффективные двухкамерные стеклопакеты, кровля выполнена из качественного металлопрофиля. Периметр объекта находится под круглосуточным видеонаблюдением.
Что входит в комплекс:
· Автоматизированная теплица на свайном фундаменте
· Здание холодильника и офиса, общая площадь
· Гараж с воротами ALUtech
· Система видеонаблюдения и уличного освещения
· Накопительные емкости для воды (2 т + 10 т)
· Грунт прессованный с удобрением (в подарок)
Почему э
- Площадь: 122 м2
- Отопление: есть
- Парковка: да
- Интернет: есть
- Стеллажи: нет
- Регион: Минск и район
- Населенный пункт: д. Захаричи
- Район: Минский
- Направление от МКАД: Молодеченское
- Контактное лицо: Фаттория
- Телефон: +375 29 190-00-88
- Телефон: +375 29 190-00-88
- Вид сделки: Предложение


в избранное
































