Продажа / покупка: Продается производственное/складское помещение по адресу г. Минск, Промышленная ул., д. 21 к. Б, г. Минск,
Продажа Производственно-Складского помещения в СЭЗ Минск, мкр-н Шабаны.
г.Минск,ул.Промышленная,21Б.
Коммерческая недвижимость.
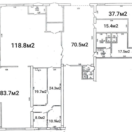
Резиндентам СЭЗ Минск законодательно предусмотрены специальные условия ведения бизнеса. Производственно-Складское помещение - Площадь: 431,1м2.+14,5м2. Функционал: производство + склад + офис. Имеется два входа в помещение. Высота въездных ворот в помещение – 4м., установлены роллеты. Высота помещений 3-6м. Полы бетонные наливные с допустимой нагрузкой - 4тонн на м2. Коммуникации: электричество 220/380В; выделенная мощность 120кВт-220кВт; отопление; водоснабжение; канализация; промышленная вытяжка. В помещении выделены зоны для: производства, склада, офиса, вспомогательных, санузла. Состояние удовлетворительное. Помещение подходит для размещения: производства; сборки/упаковки товара; сервисного центра; склада и офиса. Просторная парковка возле здания. Ограждение по периметру здания.Круглосуточный пост охраны . Удобные подъездные пути с МКАД. метро «Могилёвская», Партизанский пр-т -5 минут. Дополлнительная информация по указанным контактам.
- Площадь: 446 м2
- Регион: Минск и район
- Населенный пункт: г. Минск
- Адрес: Промышленная ул. д. 21 к. Б
- Контактное лицо: Валентина
- Телефон: +375 29 669-78-70
- Телефон: +375 29 669-78-70
- Вид сделки: Предложение


в избранное











































































