Продажа / покупка: Продается производственное/складское помещение по адресу Минск, Жилуновича ул., 2, Минск,
Продается здание станции технического обслуживания (СТО) под разные виды услуг и отличное ведение своего прибыльного бизнеса по адресу Жилуновича 2.
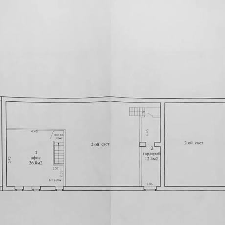
Общая площадь 350,3 кв.м. высота потолков 4.20.
Собственное отопление на отработанном масле (около 100 BYN в месяц). Коммунальные (вода и электроэнергия) оплачиваются по тарифам юр. лиц.
В данный момент работают постоянные арендаторы (7 евро за 1 м2).
Продает ИП без НДС.
Не высокий налог на недвижимость и землю.
Оборудование полностью арендаторов. Имеется отдельное помещение с ямой.
Удобный выезд к центру, а также на МКАД.
Полное юридическое сопровождение сделки гарантируем!
Торг!
Смотрите еще больше в нашем Telegram канале @an7_estate
ООО "7 этажей", УНП 192361483, лицензия № 02240/283 от 14.11.2014г., договор на оказание риэлтерских услуг 110/3 от 21.12.2020г.
Возможное назначение: СТО
Подробнее...- Площадь: 350 м2
- Регион: Минск и район
- Населенный пункт: Минск
- Район: Заводской
- Адрес: Жилуновича ул. 2
- Агентство: АН "7 этажей"
- УНП: 192361483
- Контактное лицо: Агент
- Телефон: +375 44 730-70-70
- E-mail: adv@an7.by
- Телефон: +375 44 730-70-70
- Вид сделки: Предложение


в избранное















