Продажа / покупка: Склад 496,3 м2 4-й пер Монтажников 13, Минск,
Продается панельное складское помещение 2022 года постройки.
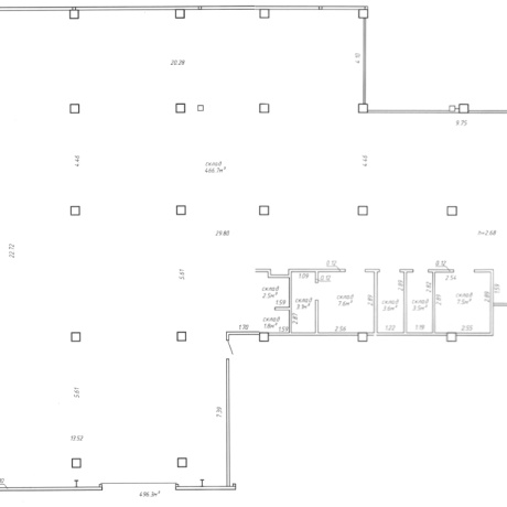
Здание возведено из панелей и кирпича, пол наливной, с пылезащитой. Входная группа организована роллетными воротами и металлическими дверьми. Мощность – 15 кВт. Вблизи расположена ТП с возможностью увеличения электрической мощности. Организован подвод коммуникаций для оборудования холодильных установок.
Удобное расположение – 5 минут до МКАД. Склад находится на огороженной охраняемой территории с круглосуточным доступом, парковочными местами общего пользования и площадкой у склада около 150 кв м. Склад занят арендатором.
Подробнее...- Год постройки: 2022
- Площадь: 496 м2
- Высота потолков: 2,7
- Мощность электричества: 15 кВт
- Отопление: Есть
- МФК: 4-ый пер. Монтажников, 13
- Регион: Минск и район
- Населенный пункт: Минск
- Район: Фрунзенский
- Микрорайон: Западный
- Направление от МКАД: В черте Минска
- Адрес: 4-ый переулок Монтажников 13
- Контактное лицо: Александр
- Телефон: +375 29 380-85-85
- E-mail: marielt.komm@mail.ru
- Телефон: +375 29 380-85-85
- Вид сделки: Предложение
- Цена: с НДС
- Форма собственности: Частная
- Стоимость коммунальных услуг
(за все помещение):В отопительный сезон: - руб.В неотопительный сезон: - руб.


в избранное
































































