Продажа / покупка: Склад 722,5 м2 4-й пер Монтажников 13, Минск,
Продается двухэтажное панельное складское помещение 2022 года постройки.
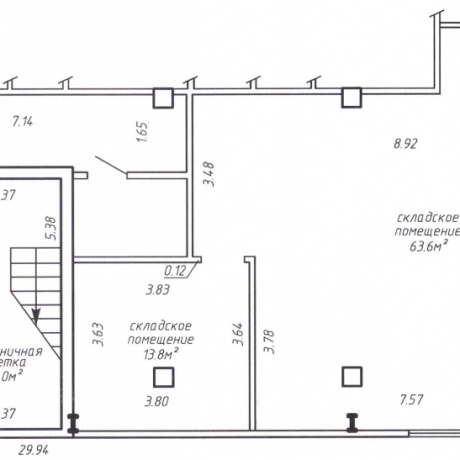
Высота потолков складского помещения составляет 4-6 метров. Здание возведено из панелей и кирпича, пол наливной, с пылезащитой. Входная группа организована роллетными воротами и металлическими дверьми. Подъем грузов на второй этаж осуществляется гидравлическим подъёмником грузоподъемностью в 2 тонны, вместимостью 3-4 поддона. Мощность – 15 кВт. Вблизи расположена ТП с возможностью увеличения электрической мощности.
Удобное расположение – 5 минут до МКАД. Склад находится на огороженной охраняемой территории с круглосуточным доступом, парковочными местами общего пользования и площадкой у склада около 150 кв м. Склад занят арендатором.
Подробнее...- Год постройки: 2022
- Площадь: 722 м2
- Высота потолков: 5
- Мощность электричества: 15 кВт
- Отопление: Есть
- МФК: 4-ый пер. Монтажников, 13
- Регион: Минск и район
- Населенный пункт: Минск
- Район: Фрунзенский
- Микрорайон: Сухарево
- Направление от МКАД: В черте Минска
- Адрес: 4-ый переулок Монтажников 13
- Контактное лицо: Владислав
- Вид сделки: Предложение
- Цена: с НДС
- Форма собственности: Частная
- Стоимость коммунальных услуг
(за все помещение):В отопительный сезон: - руб.В неотопительный сезон: - руб.


в избранное
























