Аренда: 2-уровневое помещение на 1 этаже с отдельным входом на Маяковского, Минск,
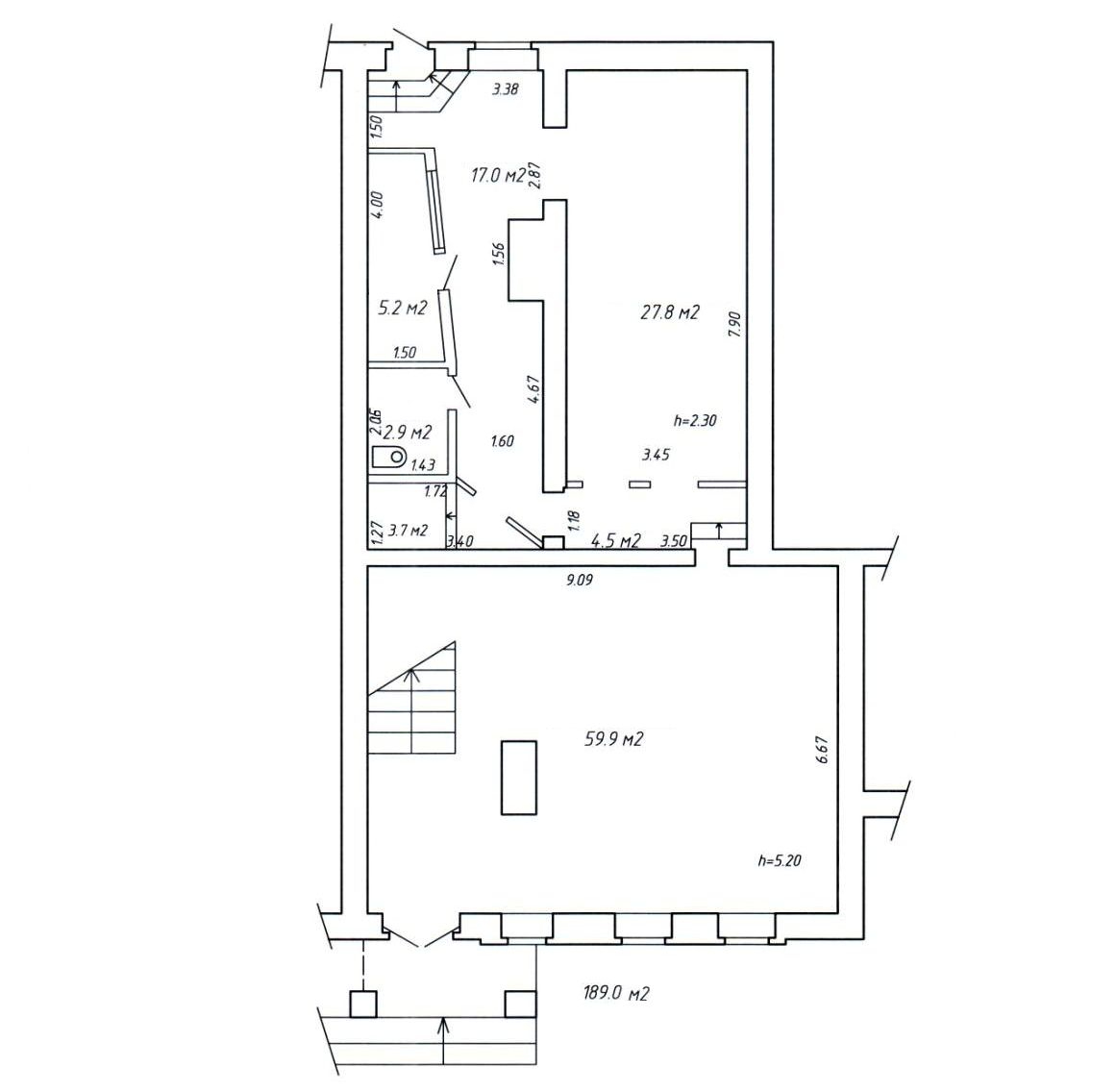
Предлагаем в аренду помещение площадью 189 кв.м., расположенное в густонаселенном жилом квартале.
Парковка автомобилей - прямо у центрального входа.
Отличное месторасположение вдоль дороги, связывающей центральную часть города с районами Лошица, Серебрянка, Чижовка и генерирующей интенсивный пассажиропоток в вышеуказанные районы.
Остановка 19 маршрутов троллейбусов, автобусов, маршруток находится всего в 35 метрах от помещения.
Огромный пешеходный трафик.
Плотная жилая застройка дополнительно активно застраивается на противоположной стороне улицы Маяковского.
Помещение имеет два уровня, два входа и расположено в изолированном здании в арке жилого дома.
Площадь 1-го уровня - 121 кв.м, площадь 2-го уровня – 68,0 кв.м.
Собственный санузел.
Электрическая мощность - ок. 100 кВт.
Удобные подъездные пути для выгрузки товара.
Возможна установка рекламных конструкций на фасаде здания.
Помещение прекрасно подойдёт для магазина, кафе, компьютерного клуба, пункта выдачи, сферы услуг, студии красоты, торгового представительства, детского центра, игрового пространства и т.д.
Аренда осуществляется без НДС.
Наши преимущества:
- парковка;
- густонаселенный район;
- повышенная проходимость;
- активный автомобильный и пешеходных трафик.
- доступ 24/7;
- современная отделка;
- пожарная сигнализация;
- вентиляция
- низкие коммунальные платежи: лето - ок. 1,3 руб./м.кв, зима - ок. 2,3 руб./м.кв.
Арендатор не оплачивает услуги агентства!
Звоните!
---
ООО «ЭТАЖИ юнайтед»
УНП: 193673318
Договор № 8/1а от 10.06.2025
Лицензия на оказание риэлтерских услуг №02240/460 МЮ РБ от 03.04.2023
- Площадь: 189 м2
- Этаж: 1
- Ремонт: отличный
- Интернет: есть
- Парковка: да
- Режим работы здания: 24/7
- Близость к метро: Ковальская Слобода
- Питание: магазин
- Высота потолка: 5,2
- Мощность электричества: 100 кВт
- Вход в помещение: Отдельный
- Количество входов: 2
- Место для вывески: имеется
- Регион: Минск и район
- Населенный пункт: Минск
- Район: Ленинский
- Микрорайон: Маяковского
- Адрес: МАЯКОВСКОГО 22/1
- Точки притяжения посетителей возле объекта: Остановка общественного транспорта, Парк, водоем
- Контактное лицо: Пётр
- Телефон: +375 44 586-74-52

- E-mail: m.a.markevich@minsk.etagi.com
- Телефон: +375 44 586-74-52

- Вид сделки: Предложение
- Цена: без НДС
- Форма собственности: Частная
- Тип договора: прямая аренда
- Стоимость коммунальных услуг
(за все помещение):В отопительный сезон: 2,3 р/м2 руб.В неотопительный сезон: 1,3 р/м2 руб.


в избранное


































