Аренда: Административно-торговое помещение в Лошице, Минск,
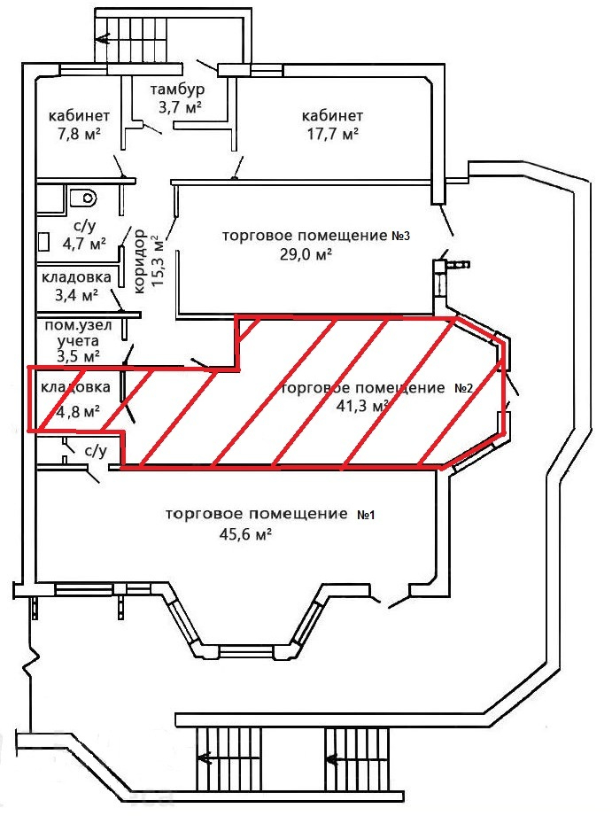
Сдается в аренду торговое помещение по адресу: г. Минск, ул. Сырокомли, д.18 площадью 46,1 кв.м. (общая площадь помещения, включая места общего пользования 60,1 кв.м.). Хорошая локация, удобный подъезд, большая парковка, рядом остановка общественного транспорта, напротив ТЦ "Автомир". Предлагаемое в аренду помещение расположено между ПВЗ "Вайлдберриз" и магазином "Пан Пёс".
- Площадь: 60 м2
- Этаж: 1
- Ремонт: Хороший
- Парковка: да
- Режим работы здания: Круглосуточно
- Высота потолка: 3
- Мощность электричества: 10
- Вход в помещение: Отдельный
- Количество входов: 2
- Место для вывески: Есть
- Контактное лицо: Арендодатель
- Телефон: +375 29 106-82-36

- E-mail: aab1068236@gmail.com
- Телефон: +375 29 106-82-36

- Вид сделки: Предложение
- Цена: без НДС
- Форма собственности: Частная
- Тип договора: прямая аренда
- Стоимость коммунальных услуг
(за все помещение):В отопительный сезон: 300 руб. руб.В неотопительный сезон: 200 руб. руб.


в избранное























