Аренда: Аренда многофункционального помещения 102,0 кв.м. в ТЦ Перекрёсток, д. Боровляны., Боравляны,
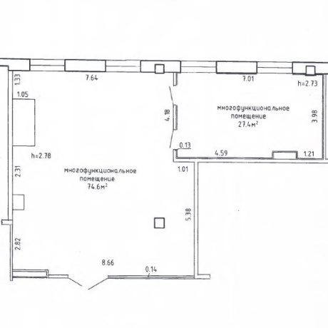
Предлагаем в долгосрочную аренду м/ф помещение 102,0 кв.м. на 3-м этаже ТЦ Перекрёсток - популярного объекта у жителей д. Боровляны и аг. Лесной.
Отлично подойдёт для:
- организации магазинов и сферы услуг;
- предприятий сервиса;
- офисов, выставочных залов и т.д.
Популярная локация в центре Боровлян. Удобные подъездные пути. Просторная стоянка.
Без оплаты услуг агентства недвижимости. По всем вопросам смело звоните. Арендные каникулы на период под ваше направление деятельности.
- Год постройки: 2015
- Площадь: 102 м2
- Этаж: 3
- Ремонт: Нормальный
- Интернет: есть
- Парковка: да
- Высота потолка: 2.78
- Мощность электричества: 1
- Торговый центр: Перекресток
- Регион: Минск и район
- Населенный пункт: Боравляны
- Район: Минский
- Микрорайон: Боровляны
- Адрес: БЕРЕЗОВАЯ РОЩА 108
- Контактное лицо: Александр Фомич
- Вид сделки: Предложение
- Цена: с НДС
- Форма собственности: Частная
- Стоимость коммунальных услуг
(за все помещение):В отопительный сезон: 1 руб.В неотопительный сезон: 1 руб.


в избранное






















