Аренда: Аренда помещений от 23 до 65 кв.м. для бизнеса всех форматов, Минск,
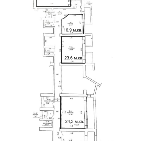
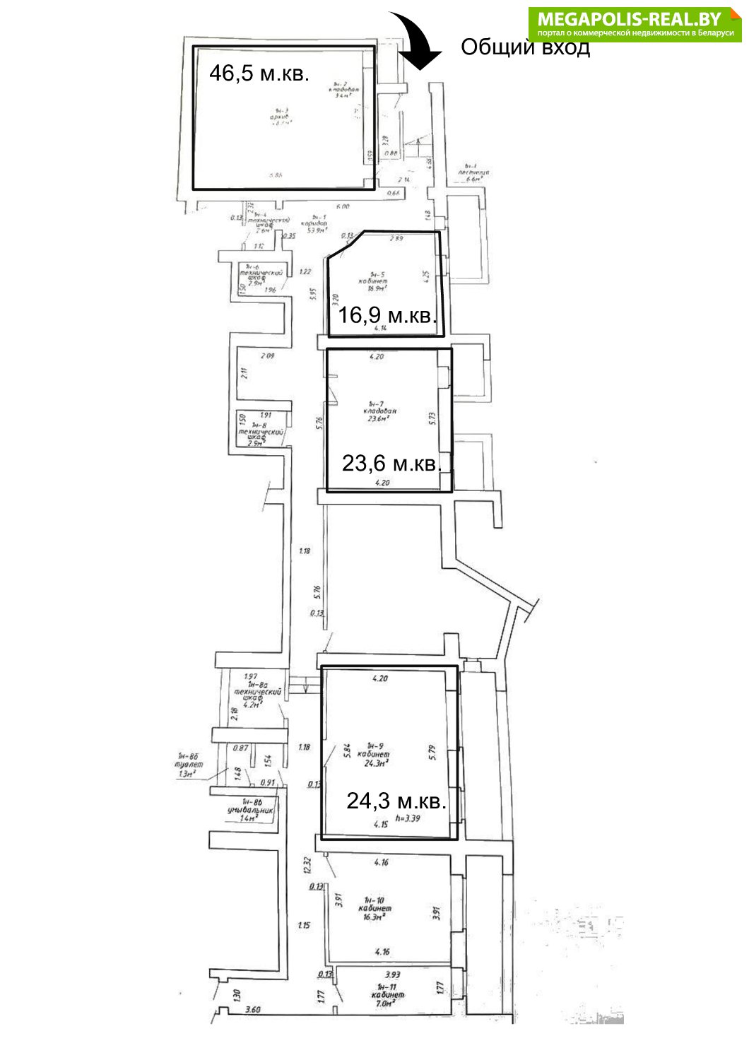
Аренда помещений от 23 до 65 кв.м. на нижнем этаже жилого дома по ул. Денисовкая, 9 в г. Минске
Возможное использование:
- хостел или организованные места для временного проживания людей;
- мазагин, шоу-рум;
- небольшие офисы: бухгалтерские, юридические, IT-услуги, страхование, консалтинг, бюро переводов;
- отдельные кабинеты для косметолога, мастера маникюра, бровиста, массажиста, визажиста;
- учебные классы и репетиторские кабинеты: индивидуальные и мини-группы по языкам, подготовка к экзаменам, кабинет логопеда;
- склады для хранения товаров или личных вещей;
- кабинет для психологической разгрузки, психолога;
- небольшая студия массажа или йоги;
- услуги по ремонту и обслуживанию, мастерские по ремонту обуви или электроники;
- печатный центр;
- студия по обучению рукоделию, творчеству, лепке, фотоуслуги;
- пункты выдачи интернет заказов или курьерской службы.
Дом расположен на пересечении ул. Денисовская и ул. Маяковского. В районе хорошо развита инфраструктура, расположено большое количество многоквартирных жилых домов, общежития, отличная транспортная доступность, рядом остановка общ. транспорта (автобусы, троллейбусы, маршр. такси)
Аренда от собственника.
- Год постройки: 1994
- Площадь: 23 м2
- Этаж: 1
- Ремонт: офисная отделка
- Интернет: есть
- Парковка: да
- Режим работы здания: круглосуточно
- Близость к метро: Ковальская Слобода
- Питание: магазин
- Высота потолка: от 2,5 до 3,5
- Мощность электричества: 27квт
- Вход в помещение: Общий
- Количество входов: 3
- Место для вывески: есть
- Торговый центр: Корона-сити
- Регион: Минск и район
- Населенный пункт: Минск
- Район: Ленинский
- Микрорайон: Маяковского
- Адрес: ДЕНИСОВСКАЯ 8
- Собственник, юр. лицо: ОАО
- Контактное лицо: Александра
- Вид сделки: Предложение
- Цена: без НДС
- Форма собственности: Частная
- Тип договора: прямая аренда
- Стоимость коммунальных услуг
(за все помещение):В отопительный сезон: 9 руб.В неотопительный сезон: 3 руб.


в избранное




























