Аренда: Аренда торгового помещения Притыцкого 8, г. Минск,
Сдаётся торговое помещение площадью 109,4 кв.м на первой линии рядом со станцией метро «Пушкинская», в сформированном жилом районе на прогулочной улице с высоким пешеходным трафиком.
Основные преимущества:
• Удобное расположение - всего несколько минут от станции метро «Пушкинская»
• Торговая линейка - рядом уже работают продуктовый магазин, аптека, магазин фруктов и другие объекты, что формирует стабильный поток покупателей
• Отдельный выход для разгрузки - удобно для поставок и логистики
• Парковка поблизости - доступ для клиентов и поставщиков
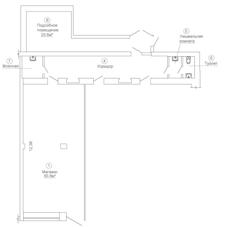
Характеристики помещения:
• Выполнен ремонт: плитка на полу, окрашенные стены, подвесной потолок
• Мощность электроснабжения - 15 кВт
• Оборудован общий санузел для трёх арендаторов
- Год постройки: 1982
- Площадь: 109 м2
- Этаж: 1
- Интернет: есть
- Охрана: нет
- Количество телефонов: 1
- Близость к метро: Пушкинская
- Питание: магазин
- Высота потолка: 4
- Мощность электричества: 15
- Вход в помещение: Отдельный
- Количество входов: 2
- Место для вывески: да
- Регион: Минск и район
- Населенный пункт: г. Минск
- Район: Фрунзенский
- Микрорайон: Раковское шоссе
- Адрес: ПРИТЫЦКОГО 8
- Точки притяжения посетителей возле объекта: Парикмахерская, салон красоты, Парк, водоем, Продуктовый магазин, Школа, детский сад
- Собственник, юр. лицо:
- Контактное лицо: Ирина Тысевич
- Вид сделки: Предложение
- Цена: без НДС
- Форма собственности: Частная
- Тип договора: прямая аренда
- Стоимость коммунальных услуг
(за все помещение):В отопительный сезон: 900 руб.В неотопительный сезон: 400 руб.


в избранное




