Аренда: Новое помещение в ЖК Минск-Мир на первом этаже, Минск,
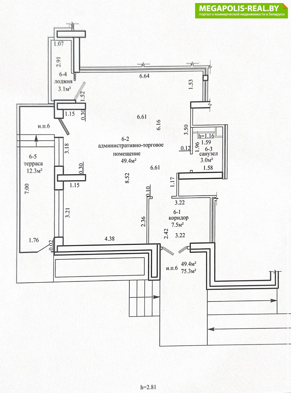
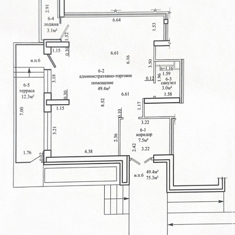
Предлагаем вашему вниманию помещение административно-торговое в ЖК Минск-Мир. Площадью 75 кв метров. На полу лежит плитка, санузел облицован, все выводы сделаны, унитаз, полотенцевушитель. Стены подготовлены под чистовую отделку. Есть пандус, лоджия и выход на террасу. Звоните, покажем в удобное время.
- Год постройки: 2022
- Площадь: 75 м2
- Этаж: 1
- Ремонт: Под отделку/частично отделка
- Интернет: Да
- Охрана: да
- Близость к метро: Аэродромная
- Питание: магазин
- Высота потолка: 2,80
- Мощность электричества: 220
- Вход в помещение: Отдельный
- Место для вывески: Да
- МФК: Минск Мир (Minsk World)
- Регион: Минск и район
- Населенный пункт: Минск
- Район: Октябрьский
- Микрорайон: Минск-Мир
- Адрес: Лученка 9
- Точки притяжения посетителей возле объекта: Вокзал, Кафе, бар, ресторан, Остановка общественного транспорта, Торговый центр
- Собственник, физ. лицо
- Контактное лицо: Собственник
- Вид сделки: Предложение
- Цена: без НДС
- Форма собственности: Частная
- Тип договора: прямая аренда
- Стоимость коммунальных услуг
(за все помещение):В отопительный сезон: 320 руб.В неотопительный сезон: 320 руб.


в избранное























