Аренда: Помещение 110,4м2 (аренда) ул Кирова 2, Минск,
Предлагаем аренду коммерческого помещения на Кирова 2! Коммерческое помещение общей площадью 189,2 м² располагается на 1-м этаже жилого дома в центре Минска, напротив ЖД Вокзала, по адресу ул. Кирова, 2.Удобная локация с большим пешеходным и автомобильным трафиком. Рядом остановки общественного транспорта, 300 метров до станции метро «Площадь Ленина». Рядом множество коммерческих помещений формата Street Retail: магазины, аптеки, кофейни, рестораны и т.д. • Центр города;• Отдельный вход;• Вход со двора (разгрузка);• Естественное освещение;• Проведена мощность 50 кВт• Приточно-вытяжная вентиляция;• Доступ в помещение 24/7;• Парковка во дворе дома. Проведены коммуникации: электроснабжение, отопление, пожарная сигнализация, приточно-вытяжная вентиляция, система кондиционирования, скоростной интернет. Арендатор не платит комиссию агентству!Готовы рассмотреть Ваши предложения.Звоните!
- Год постройки: 1951
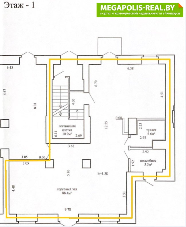
- Площадь: 110 м2
- Этаж: 1
- Ремонт: Отличный ремонт
- Интернет: есть
- Режим работы здания: 24/7
- Близость к метро: Площадь Ленина
- Питание: магазин
- Высота потолка: 4,58
- Мощность электричества: 50 кВт
- Вход в помещение: Отдельный
- Контактное лицо: Иван
- Телефон: +375 29 380-85-85
- E-mail: marielt.komm@mail.ru
- Телефон: +375 29 380-85-85
- Вид сделки: Предложение
- Цена: без НДС
- Форма собственности: Частная
- Стоимость коммунальных услуг
(за все помещение):В отопительный сезон: - руб.В неотопительный сезон: - руб.


в избранное



































