Аренда: Помещение прямо у пл. Победы, Минск,
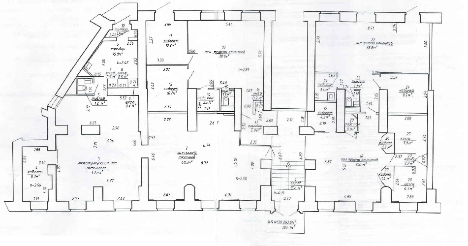
Многофункциональное нежилое коммерческое помещение в самом центре Минска, в оживленном месте, проспект Независимости, дом 40, первый этаж с отдельным выходом на улицу Захарова, прямо к метро Площадь Победы и во двор.
Отличный свежий ремонт, привлекательная входная группа. Помещения площадью 116,4 кв м – часть изолированного помещения. В настоящий момент высвобождаются помещения левого крыла. Ставка – 25 евро без НДС/м2.
Высота потолков 2.7 м, санузлы, выход во двор (возможно использовать для погрузки-выгрузки), выход на улицу Захарова, обслуживаемая пожарная система, приточно-вытяжная вентиляция, кондиционирование, окна на 2 стороны, окна с видом на Площадь Победы, несколько интернет – провайдеров.
- Год постройки: 1948
- Площадь: 116 м2
- Этаж: 1
- Ремонт: Да
- Интернет: есть
- Охрана: нет
- Парковка: да
- Режим работы здания: 24/7
- Близость к метро: Площадь Победы
- Питание: кафе
- Высота потолка: 2,7
- Мощность электричества: 10
- Вентиляция: Приточно-вытяжная
- Первая линия объекта: да
- Вход в помещение: Отдельный
- Количество входов: 2
- Регион: Минск и район
- Населенный пункт: Минск
- Район: Партизанский
- Микрорайон: Козлова, Захарова
- Адрес: НЕЗАВИСИМОСТИ 40
- Точки притяжения посетителей возле объекта: Банковское отделение, Вуз, колледж, Кафе, бар, ресторан, Остановка общественного транспорта, Парикмахерская, салон красоты, Парк, водоем, Продуктовый магазин
- Собственник, юр. лицо: ООО «РентДевелопмент»
- Контактное лицо: Ольга
- Вид сделки: Предложение
- Цена: без НДС
- Форма собственности: Частная
- Тип договора: прямая аренда
- Стоимость коммунальных услуг
(за все помещение):В отопительный сезон: 13 руб.В неотопительный сезон: 10 руб.


в избранное
























