Аренда: Сдается торговое помещение по адресу г. Минск, Алибегова ул., д. 15, г. Минск,
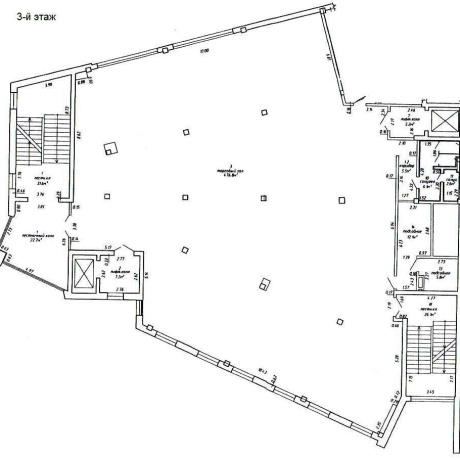
Аренда торгового помещенияАдрес: г. Минск, ул. Алибегова, д. 15Площадь: 552,3 м2Стоимость: 11 €/м2, в т.ч. НДСАренда торгово - административного помещения с отдельным входом, на 3 этаже четырехэтажного панельного здания магазина 2011 года постройки, на площади земельного участка 0,3113 га.Подходит под торговлю, сферу услуг, офис, кафе.Характеристики:- Отдельный вход с лестницы, 2 запасных входа- Санузел- Помещения для администрации, отдыха, приема пищи- Грузовой + пассажирский лифт- Отопление- Вентиляция- Отличные подъездные пути- Доступ 24/7- Парковка- Отличные подъездные пути- Плотная жилая застройкаАрендатор не оплачивает услуги риэлтерской организации!Ваш агент – Андрей СмолкаБольше предложений на САЙТЕ Присоединяйтесь к нам в соцсетях:Договор № 75/3а от 26.08.2025 по 25.08.2027ООО «Сильван-Инвест», УНП 192927433, лицензия №02240/383, Министерство юстиции РБ, 24.09.2019.
- Площадь: 552 м2
- Этаж: 3
- Ремонт: есть
- Интернет: есть
- Парковка: да
- Режим работы здания: 24/7
- Близость к метро: Михалово
- Питание: магазин
- МФК: Алибегова 15
- Регион: Минск и район
- Населенный пункт: г. Минск
- Район: Московский
- Микрорайон: Юго-Запад
- Адрес: Алибегова ул. д. 15
- Контактное лицо: Смолка Андрей
- Телефон: +375 44 780-08-63
- Телефон: +375 44 780-08-63
- Вид сделки: Предложение


в избранное






































































