Аренда: Сдается торговое помещение по адресу г. Минск, Белградская ул., д. 9, г. Минск,
Сдается торговая площадь 64.5 м2 в молодом и густонаселенном районе Минска!
Расположение:
• Первая линия с большим пешеходным трафиком
• Дом расположен на перекрестке, соседи"ЕвроПочта"
• Отдельный вход, санузел
• Удобные подъездные пути и остановки общественного транспорта в шаговой доступности
• Рядом находятся школы, детские сады, торговые центры и другие организации
Описание помещения:
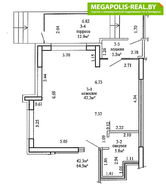
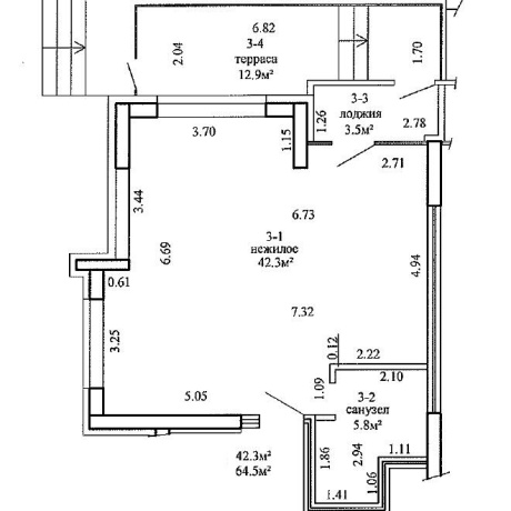
• Общая площадь: 64.5 м2
• Первый этаж с отдельным входом
• высокие потолки
• Возможность проведения ремонта под ключ по вашему дизайн-проекту
• Подведены все необходимые коммуникации: тепло, канализация, вода, электричество, интернет
Условия аренды:
• Минимальный срок аренды: 1 год
• Возможность продления договора на выгодных условиях
• Гибкие условия для надежных и долгосрочных арендаторов
Преимущества для бизнеса:
• Идеальное место для розничного магазина, салона красоты, кафе или офиса
• Молодой и динамично развивающийся район с высокой плотностью населения
• Отличная видимость и доступность благодаря расположению на перекрестке
• Постоянный поток потенциальных клиентов благодаря большому пешеходному трафику
Лицензия: 02240/446 МЮ РБ, 11.07.2022
- Площадь: 65 м2
- Регион: Минск и район
- Населенный пункт: г. Минск
- Адрес: Белградская ул. д. 9
- Контактное лицо: Фаттория
- Телефон: +375 25 532-84-21
- Телефон: +375 25 532-84-21
- Вид сделки: Предложение


в избранное






























































































