Аренда: Сдается торговое помещение по адресу г. Минск, Червякова ул., д. 62, г. Минск,
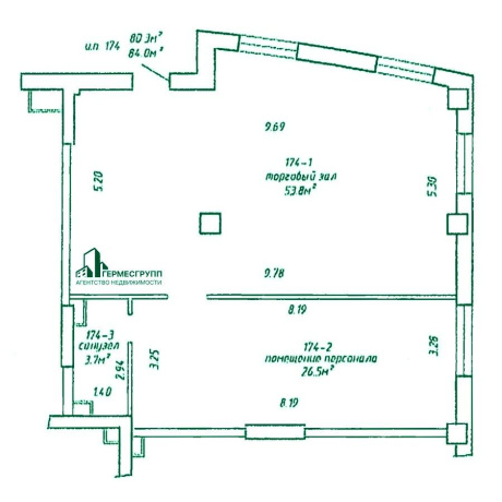
Сдаётся ТОРГОВОЕ ПОМЕЩЕНИЕ 84 м2
ул. Червякова,62
Помещение 84 м2 на 1 этаже 20-ти этажного, жилого дома.
ОТДЕЛЬНЫЙ вход.
С отделкой: окрашенные стены, потолки армстронг, пол - плитка. Свой с/у.
35.37 бел. руб. за 1 м2 без НДС.
Парковка рядом, оживленное место, хорошие подъездные пути.
Организуем осмотр объекта.
Согласуем условия договора аренды.
Если Вам не подходит это помещение, поможем подобрать другое под Ваши требования.
Получить консультацию по указанному телефону.
- Площадь: 84 м2
- Ремонт: есть
- Интернет: есть
- Близость к метро: Площадь Якуба Коласа
- Питание: магазин
- Регион: Минск и район
- Населенный пункт: г. Минск
- Район: Центральный
- Микрорайон: Шевченко
- Адрес: Червякова ул. д. 62
- Контактное лицо: Дмитрий
- Вид сделки: Предложение


в избранное


































