Аренда: Сдается торговое помещение по адресу г. Минск, Дзержинского просп., д. 94, г. Минск,
Аренда Торгового помещения у метро Петровщина.
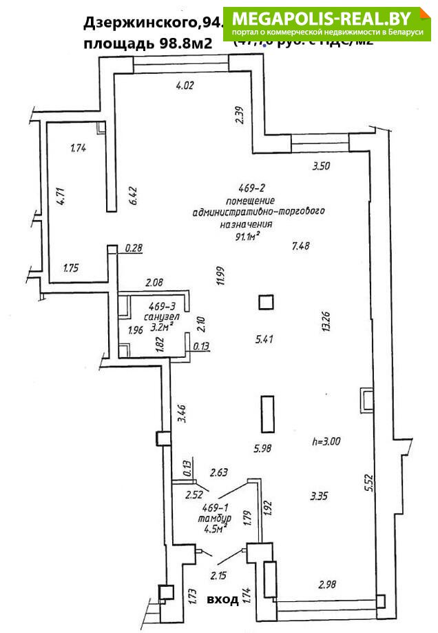
г.Минск, пр-т Дзержинского,94.
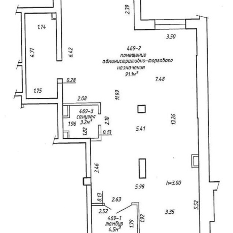
Торговое помещение-Офис.Площадь 98.8м2. Арендндная ставка/м2 - 47,76 руб.с НДС.Отделка,санузел. В наличии Торговое помещение: пр-т Дзержинского, 94 -1-Й этаж,136.3м2-Арендндная ставка/м2- 79,6 руб.с НДС.Отделка. Эл.мощность 14,9кВт. В наличии Торговое помещение: пр-т Дзержинского,90 -1-Й этаж,143.3м2-Арендндная ставка/м2- 55,72 руб.с НДС . В наличии Торговое помещение: пр-т Дзержинского,92, 2-й этаж,103.9м2-Арендндная ставка/м2- 47,76 руб.с НДС . Доступ 24/7. Метро Петровщина-2 мин.пешком. Дополнительно. Звоните.
- Площадь: 98 м2
- Ремонт: есть
- Интернет: есть
- Парковка: да
- Близость к метро: Петровщина
- Питание: магазин
- Регион: Минск и район
- Населенный пункт: г. Минск
- Район: Московский
- Микрорайон: Юго-Запад
- Адрес: Дзержинского просп. д. 94
- Контактное лицо: Валентина
- Вид сделки: Предложение


в избранное



































