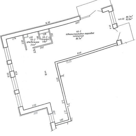
Аренда: Сдается торговое помещение по адресу г. Минск, Нововиленская ул., д. 37, г. Минск,
Адрес: Нововиленская,37Площадь общая: 92 м2Преимущества:
• все необходимые условия для работы• мощность 15 кВт• высота потолков — 3,2 м.• пол – плитка 60*60• стоянка• круглосуточный доступ• холодное и горячее водоснабжение• канализацияУдобные подъездные пути – недалеко расположена автобусная остановка.Арендатор не оплачивает услуги риэлтерской организации!Помещение оснащено кондиционером (сплит система), собственный санузел (2 помещения), два отдельных входа, есть подъезд для грузового транспорта.Предоставляются арендные каникулы на период открытия магазина.
- Площадь: 92 м2
- Интернет: есть
- Парковка: да
- Питание: магазин
- Регион: Минск и район
- Населенный пункт: г. Минск
- Район: Центральный
- Микрорайон: Левада
- Адрес: Нововиленская ул. д. 37
- Контактное лицо: Татьяна
- Телефон: +375 29 940-66-66
- Телефон: +375 29 940-66-66
- Вид сделки: Предложение


в избранное




















