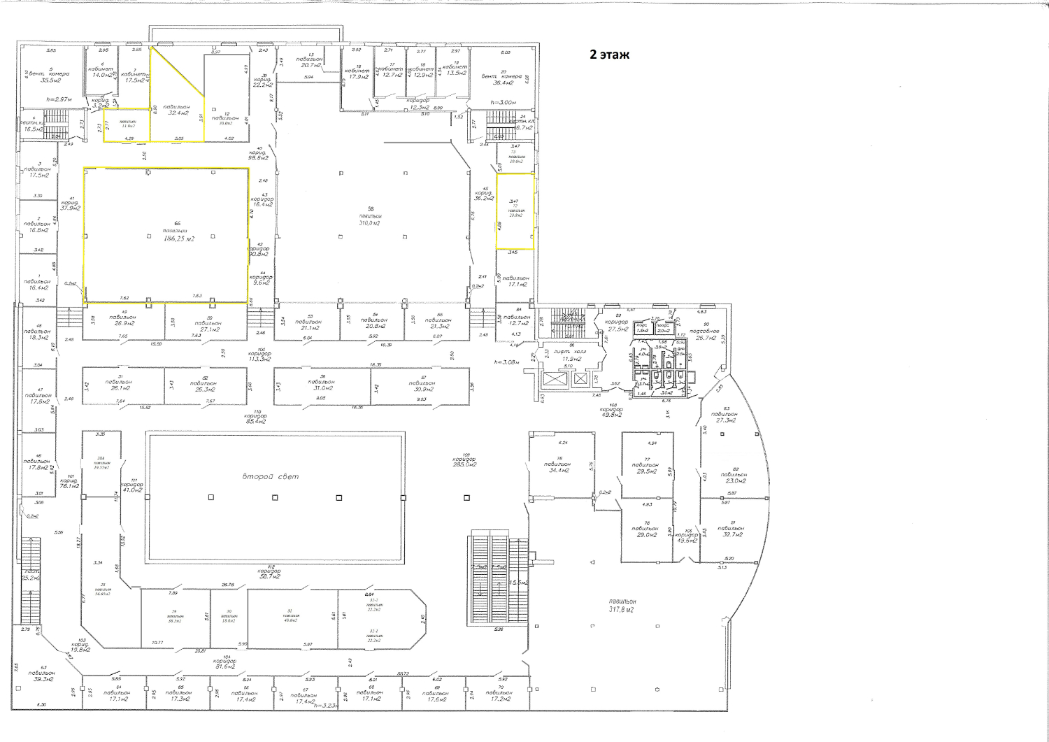
Аренда: Торговые площади от 11,9 до 186,25 кв.м в ТЦ "RIGA" (ул. Сурганова, 50, г. Минск), Минск,
ТЦ RIGA предлагает в аренду торговые помещения на 2 этаже площадью от 11,9 кв.м до 186,25 кв.м.
Стоимость квадратного метра от 40 рублей.
На первом этаже расположен крупнейший супермаркет "SOSEDI". Рядом с ТЦ расположены рестораны общественного питания Domino
- Год постройки: 1980
- Площадь: 186 м2
- Этаж: 1, 2
- Ремонт: да
- Интернет: есть
- Охрана: да
- Парковка: да
- Режим работы здания: 09.00-21.00
- Близость к метро: Академия наук
- Питание: магазин
- Высота потолка: от 2,5 до 2,8 м
- Мощность электричества: от 2,5 кВт 15,0 кВт
- Вентиляция: есть
- Витринное остекление: да
- Первая линия объекта: нет
- Вход в помещение: Отдельный
- Торговый центр: Рига
- Регион: Минск и район
- Населенный пункт: Минск
- Район: Советский
- Микрорайон: Некрасова
- Адрес: СУРГАНОВА 50
- Точки притяжения посетителей возле объекта: Банковское отделение, Кафе, бар, ресторан, Магазин бытовой химии, Медицинский центр, Остановка общественного транспорта, Парикмахерская, салон красоты, Продуктовый магазин
- Собственник, юр. лицо: ОАО "УНИВЕРСАМ РИГА"
- Контактное лицо: Мария
- Вид сделки: Предложение
- Цена: с НДС
- Форма собственности: Частная
- Тип договора: прямая аренда
- Стоимость коммунальных услуг
(за все помещение):В отопительный сезон: 7 руб. руб.В неотопительный сезон: 6,65 бел. рублей руб.


в избранное
























