Продажа / покупка: 577 кв.м СПА -центр -салон красоты на территории действующего ЖК «Фарворовый», Минск,
577 кв.м СПА -центр -салон красоты на территории действующего ЖК «Фарворовый». Сдача объекта с отделкой 3 квартал 2026 года.
Расположен внутри квартала, рядом с пешеходным бульваром. Вход в СПА-центр возможен с пешеходного бульвара, а также из паркинга.
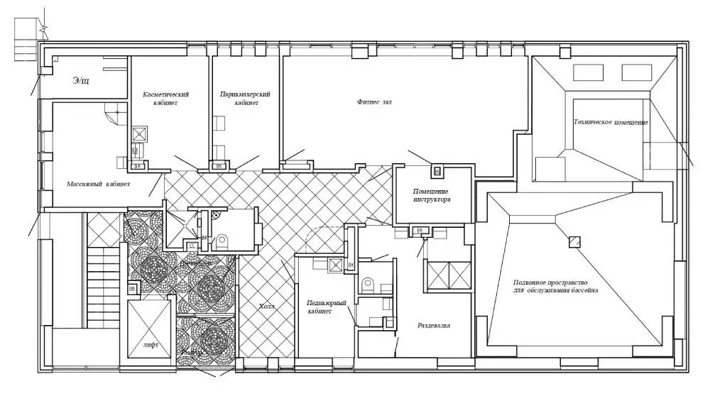
Первый этаж СПА-центра предназначен для поддержания красоты и здоровья тела. Там размещаются: фитнес-центр, массажные кабинеты, салон красоты, солярий и т.д.
Второй этаж — физкультурно-оздоровительный: финская, русская, турецкая сауны, бассейн с противотоком и подводным массажем, джакузи, витаминный бар.
Под зданием СПА-комплекса расположен паркинг. Машино-места продаются, возможна рассрочка до 2-х лет без удорожания.
Инвесторам при покупке здания СПА (общая площадь здания 577м2):
стоимость м2 (в эквиваленте долларов США) — 2 000 с НДС
общая стоимость (в эквиваленте долларов США) — 1 154 000 с НДС.
- Год постройки: 2026
- Площадь: 577 м2
- Этаж: первый
- Парковка: да
- Режим работы здания: 24/7
- Близость к метро: Площадь Якуба Коласа
- Питание: магазин
- Высота потолка: 3 метра
- Вход в помещение: Отдельный
- Регион: Минск и район
- Населенный пункт: Минск
- Район: Центральный
- Микрорайон: Хоружей, Кропоткина
- Адрес: КРОПОТКИНА П.А. 59
- Точки притяжения посетителей возле объекта: Банковское отделение, Вокзал, Вуз, колледж, Кафе, бар, ресторан, Магазин бытовой химии, Медицинский центр, Остановка общественного транспорта, Парикмахерская, салон красоты, Парк, водоем, Почта, Продуктовый магазин, Торговый центр, Школа, детский сад
- Контактное лицо: Евгений
- Вид сделки: Предложение
- Цена: с НДС
- Форма собственности: Частная
- Тип договора: продажа объекта


в избранное
































