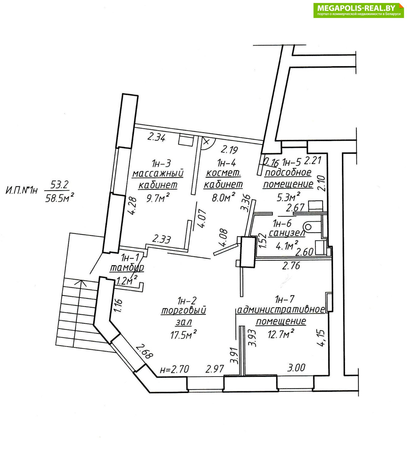
Продажа / покупка: Купить торговое помещение, г. Минск, ул. Коласа, 59, Минск,
· Помещение продаётся как инвестиционный проект с хорошей арендной ставкой. Арендатор крупный сетевик, долгосрочная аренда.
· Объект расположен в районе плотной жилой застройки на первом этаже жилого дома вдоль трамвайных путей.
· На окнах установлены роллеты, входная группа с торца здания, парковка во внутри дворовой территории.
· Объект недвижимости с хорошей транспортной доступностью.
· В помещении выполнен отличный ремонт.
· Доступ 24/7
Звоните, ответим на все Ваши вопросы.
- Площадь: 58 м2
- Этаж: 1
- Ремонт: есть
- Интернет: есть
- Парковка: да
- Режим работы здания: 24/7
- Близость к метро: Московская
- Питание: магазин
- Высота потолка: -
- Мощность электричества: -
- Регион: Минск и район
- Населенный пункт: Минск
- Район: Советский
- Микрорайон: Якуба Коласа
- Адрес: КОЛАСА Я 59
- Контактное лицо: Федор Колбасов
- Телефон: +375 29 659-09-24
- E-mail: office@kv-st.by
- Телефон: +375 29 659-09-24
- Вид сделки: Предложение
- Цена: без НДС
- Форма собственности: Частная
- Стоимость коммунальных услуг
(за все помещение):В отопительный сезон: - руб.В неотопительный сезон: - руб.


в избранное







































