Продажа / покупка: Купить торговое помещение, г. Минск, ул. Некрасова, 114, минск,
· В бизнес-центре "Капитал" продаётся торговое помещение как инвестиционный проект с хорошей арендной ставкой.
· Помещение находится у самого входа в бизнес-центр.
· Рядом со зданием большая парковка, через дорогу автобусный парк.
· Может использоваться в качестве торгового объекта непродовольственной группы товаров, пункта выдачи интернет магазина или сервисного центра, офиса компании и пр.
· Хорошее транспортное сообщение, автостанция Карастояновой.
Звоните, ответим на все Ваши вопросы.
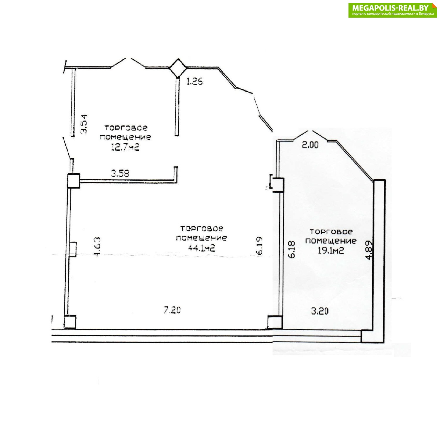
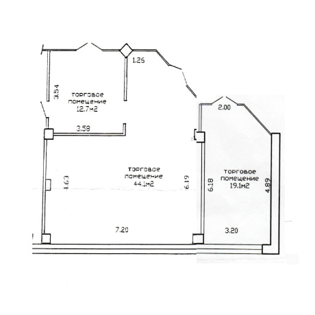
- Площадь: 75 м2
- Этаж: 1
- Ремонт: есть
- Интернет: есть
- Охрана: да
- Парковка: да
- Режим работы здания: 24/7
- Близость к метро: Академия наук
- Питание: магазин
- Высота потолка: -
- Мощность электричества: -
- Регион: Минск и район
- Населенный пункт: минск
- Район: Советский
- Микрорайон: Некрасова
- Адрес: НЕКРАСОВА 114
- Контактное лицо: Фёдор
- Вид сделки: Предложение
- Цена: без НДС
- Форма собственности: Частная
- Стоимость коммунальных услуг
(за все помещение):В отопительный сезон: - руб.В неотопительный сезон: - руб.


в избранное






































