Продажа / покупка: Продается торговое помещение по адресу Минск, Игоря Лученка, 30, Минск,
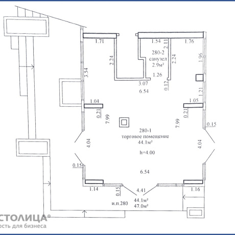
Торговое помещение площадью 47 кв.м. по адресу: ул. Игоря Лученка, 30. Помещение находится в оживленном месте, на первом этаже жилого дома "Венеция" в квартале «Западная Европа» комплекса Minsk World, имеет три отдельных входа.Помещение с высокой инсоляцией без отделки включает в себя торговый зал общей площадью 44,1 кв.м., санузел. Функционирует центральное отопление, пожарная сигнализация, высокоскоростной интернет. Подведено электричество, вода, канализация.В непосредственной близости находится ТЦ "Аиа Молл", отделения банков, аптеки, точки общественно питания, а также торгового назначения и сферы услуг. В шаговой доступности ст. метро "Аэродромная", остановки общественного транспорта.Покупатель не оплачивает услуги агентства.
- Площадь: 47 м2
- Интернет: есть
- Близость к метро: Аэродромная
- Питание: магазин
- МФК: Минск Мир (Minsk World)
- Регион: Минск и район
- Населенный пункт: Минск
- Район: Октябрьский
- Микрорайон: Минск-Мир
- Адрес: Игоря Лученка 30
- Контактное лицо: Валерий Малец
- Телефон: 8-017 336-77-72
- E-mail: malets@t-s.by
- Телефон: 8-017 336-77-72
- Вид сделки: Предложение


в избранное
























