Продажа / покупка: Продажа помещения 29,9 м2 ул Тимирязева 121к4, Минск,
30 м² на 1-м этаже рядом с ТЦ «Ждановичи» - отличное помещение по адекватной цене!
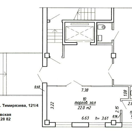
Редкость на рынке: компактное помещение 29,9 м² в БЦ с активным трафиком под офис/торговлю/кафе/магазин/ПВЗ.
Минск, ул. Тимирязева, 121/4, 1 этаж - 100 метров до ТЦ «Ждановичи».
29,9 м²: торговый зал 22 м² + подсобка 5,6 м² + санузел. Потолки 3,61 м.
Под любой бизнес:
Мини-кафе/кофейня
Торговля (аптека, цветы, доставка)
Офис, ПВЗ, услуги.
Почему выгодно:
Высокий трафик клиентов/покупателей: офисы БЦ + поток из ТЦ «Ждановичи»
Большая парковка + МКАД рядом
Видеонаблюдение, пожаротушение, отдельный вход, центральные коммуникации
Условия продажи:
От физлица, без НДС
Готовы к быстрой сделке
Низкие коммунальные платежи
Покупатель не оплачивает услуги агентства!
Звоните сейчас: покажем, расскажем, согласуем все условия, обеспечим быстрый договор.
- Год постройки: 2010
- Площадь: 29 м2
- Этаж: 1
- Ремонт: есть
- Интернет: есть
- Высота потолка: 3,61
- Мощность электричества: -
- МФК: Тимирязева 121 к.3
- Регион: Минск и район
- Населенный пункт: Минск
- Район: Центральный
- Микрорайон: Тимирязева
- Адрес: Тимирязева 121 к.3
- Контактное лицо: Ирина
- Телефон: +375 29 380-85-85
- E-mail: marielt.komm@mail.ru
- Телефон: +375 29 380-85-85
- Вид сделки: Предложение
- Цена: без НДС
- Форма собственности: Частная
- Стоимость коммунальных услуг
(за все помещение):В отопительный сезон: - руб.В неотопительный сезон: - руб.


в избранное




























