Продажа / покупка: Продажа торгового помещения 182,9 м² в БЦ "ТехноПарк", Минск,
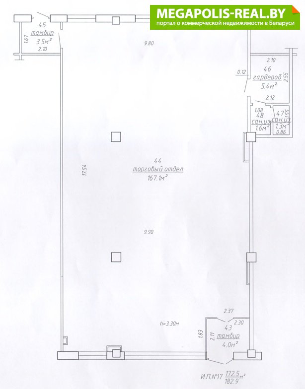
Продается просторное торговое помещение общей площадью 182,9 м², расположенное на первом этаже бизнес-центра "ТехноПарк".
Отдельный вход + дополнительный вход — удобно для организации потока клиентов и персонала
Высота потолков — 3,3 м
Собственные санузлы, водоснабжение и канализация
Система вентиляции
Помещение в хорошем состоянии, готово к эксплуатации
Высокий пешеходный и автомобильный трафик
Отличная транспортная доступность
Станция метро "Могилёвская" — всего в 10 минутах
Идеально подходит под магазин, шоурум, офис продаж
- Площадь: 183 м2
- Этаж: 1
- Ремонт: да
- Интернет: да
- Режим работы здания: 24/7
- Близость к метро: Могилёвская
- Вентиляция: да
- Витринное остекление: да
- Первая линия объекта: да
- Вход в помещение: Отдельный
- Количество входов: 2
- Место для вывески: да
- Контактное лицо: Ирина
- Вид сделки: Предложение
- Цена: без НДС
- Форма собственности: Частная


в избранное
















