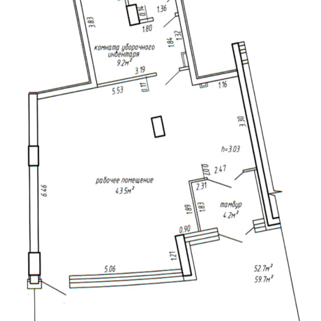
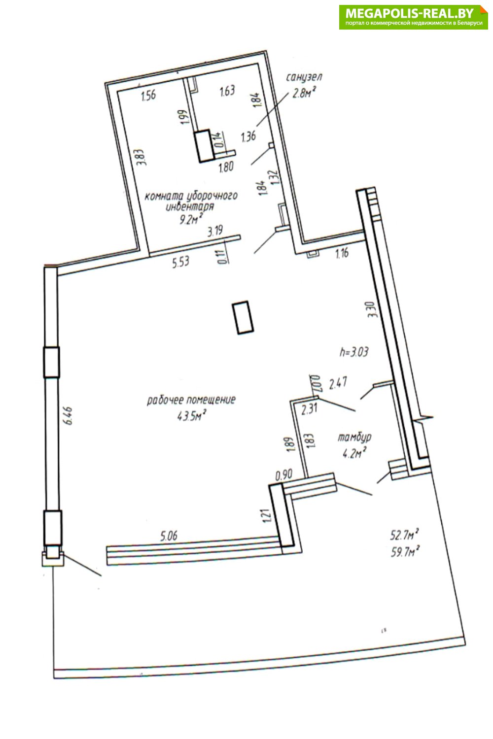
Продажа / покупка: Продажа торгового помещения 59.7 м2 ул Аэродромная 32, Минск,
Продаётся торговое помещение с отличным ремонтом на 1-м этаже жилого дома по адресу: ул. Аэродромная, 32.
- 2 отдельных входа с доступом 24/7;
- очень высокий пеший и авто трафик: помещение расположено у крупного перекрёстка, рядом остановка общественного транспорта, в пешей доступности ст.м. «Аэродромная»;
- проведены все коммуникации: отопление, вентиляция, водоснабжение, система кондиционирования, видеонаблюдение, пожарная и охранная сигнализации.
В помещении имеется арендатор.
Помещение подойдёт как под арендный бизнес, так и свой (магазин, шоурум, кафе, а также сферу услуг).
Покупатель не оплачивает услуги агентства.
- Год постройки: 2017
- Площадь: 59 м2
- Этаж: 1
- Ремонт: Евроремон
- Интернет: скоростной
- Парковка: да
- Близость к метро: Аэродромная
- Питание: магазин
- Высота потолка: 3
- Мощность электричества: 6
- МФК: Минск Мир (Minsk World)
- Регион: Минск и район
- Населенный пункт: Минск
- Район: Октябрьский
- Микрорайон: Минск-Мир
- Адрес: АЭРОДРОМНАЯ 32
- Контактное лицо: Александр
- Телефон: +375 29 380-85-85
- E-mail: marielt.komm@mail.ru
- Телефон: +375 29 380-85-85
- Вид сделки: Предложение
- Цена: без НДС
- Форма собственности: Частная
- Стоимость коммунальных услуг
(за все помещение):В отопительный сезон: - руб.В неотопительный сезон: - руб.


в избранное
















