Продажа / Покупка: Продается дача с/т. Факел-Третий век, с/т. Факел-Третий век,
- Площадь участка: 8.08 соток
- Площадь дома: 101.5 м2
- Год постройки: 2001
Дача для жизни и отдыха в экологически чистом месте недалеко от Минска. Отличный вариант для комфортной жизни и отдыха всего в 19 км от Минска по трассе Р-28 (Молодечненское направление).
Товарищество расположено рядом с а/г Лошаны, в окружении хвойного леса и в 100 метрах от озера.
Удобное транспортное сообщение
—19 км от Минска по трассе Р-28
— Маршрутки каждые 15 минут от станции Минск-Пассажирский и автовокзала Центральный
— Регулярное автобусное сообщение
— Ж/д остановки Беларусь и Хмелевка — чуть более 3 км
Подъездные пути асфальтированы, последние 200 метров — грунтовая дорога (зимой регулярно чистится).
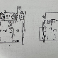
Дом
Общая площадь — более 100 м2. Дом зарегистрирован, имеется технический паспорт.
Планировка:
— Цокольный этаж: гараж + 2 кладовые
— 1 этаж: две комнаты, веранда, душевая, баня
— Жилая мансарда: просторная комната с камином
Высота потолков — более 3 м.
Стены отделаны качественной вагонкой. Есть лоджия и открытая терраса.
В дом заведена вода, пристроен теплый туалет.
Отопление печное. Вода сезонная.
Дом полностью готов для комфортного отдыха и подходит для круглогодичного проживания.
Характеристики:
— Фундамент — железобетонный
— Перекрытия — железобетонные плиты
— Стены — блоки, облицованы кирпичом
— Межэтажные перекрытия — деревянные
— Кровля — шифер
— Окна — ПВХ стеклопакеты
Участок
Площадь — 8,08 сотки.
Ровный, ухоженный, правильной формы.
Приватизирован, огорожен.
На участке:
— Плодовые деревья и кустарники
— Плодородная почва
— Достаточно места для огорода
Окружение и инфраструктура
Товарищество находится в окружении хвойного леса — грибы, ягоды, чистый воздух.
В 100 метрах — озеро, пригодное для купания и рыбалки.
В шаговой доступности:
— 2 магазина (Евроопт)
— Почта
— Школа
— ФАП
— Аптека
— Кафе
— Пункт Wildberries
Соседи спокойные, дружелюбные, многие проживают круглый год.
Площадь указана по СНБ.
Работаем с различными видами кредитования:
- Система строительных сбережений от Беларусбанка;
-Семейный капитал;
-Ипотечное кредитование и все виды кредитования на покупку недвижимости.
А также:
-Подыщем выгодный для Вас банк;
-Поможем продать вашу недвижимость для покупки этой.
Напишите нам в удобный для Вас мессенджер:
Viber | Telegram | WhatsApp
Ответим на Ваши вопросы, предоставим всю необходимую информацию.
Свежие варианты квартир — до массовых просмотров. Ежедневные обновления:
ООО «А
- Регион: Минск и район
- Населенный пункт: с/т. Факел-Третий век
- Район: Минский
- Контактное лицо: Недвижимость
- Телефон: +375 29 533-80-44
- Телефон: +375 29 533-80-44

















в избранное
















