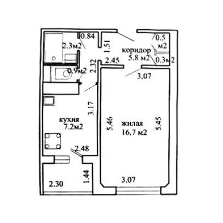
Продается квартира по адресу Белецкого ул. д. 14 к. 2, г. Минск
- Количество комнат: однокомнатная
- Этаж: 2 этаж из 9
- Санузел: раздельный
- Год постройки: 1988
Предлагаем к продаже уютную 1-комнатную квартиру по адресу: Белецкого, 14/1.
Удобный второй этаж, дом 1988 года постройки, находится в 15 минутах ходьбы от ст. м. "Малиновка".
Дом после капремонта.
Чистый подъезд, хорошие соседи.
Зеленый тихий уютный двор.
Рядом все, что нужно для комфортной жизни: сады, гимназии и школы, поликлиники и банки, аптеки.
Близость к дому парка и реки обеспечит Вам отличный досуг в любое время года: вечерняя пробежка для любителей активного образа жизни, прогулки с детьми, на велосипедах.
Идеально подходит для жизни; ликвидно для сдачи в аренду - грамотная и выгодная инвестиция!
Полное юридическое сопровождение сделки. Содействие в реализации вашей недвижимости.
Общая площадь указана по СНБ.
Лицензия: №02240/362 МЮ РБ, 31.07.2018
- Регион: Минск и район
- Населенный пункт: г. Минск
- Микрорайон: Малиновка
- Адрес: Белецкого ул. д. 14 к. 2
- Метро: Петровщина
- Район: Московский
- Контактное лицо: Наталья
- Телефон: +375 29 306-18-45
- Телефон: +375 29 306-18-45
- Продажа квартиры


в избранное













































