Продается квартира по адресу Лещинского ул. д. 25, г. Минск
- Количество комнат: однокомнатная
- Этаж: 2 этаж из 9
- Санузел: раздельный
- Год постройки: 1987
Продаётся однокомнатная квартира по адресу ул. Лещинского, д. 25.
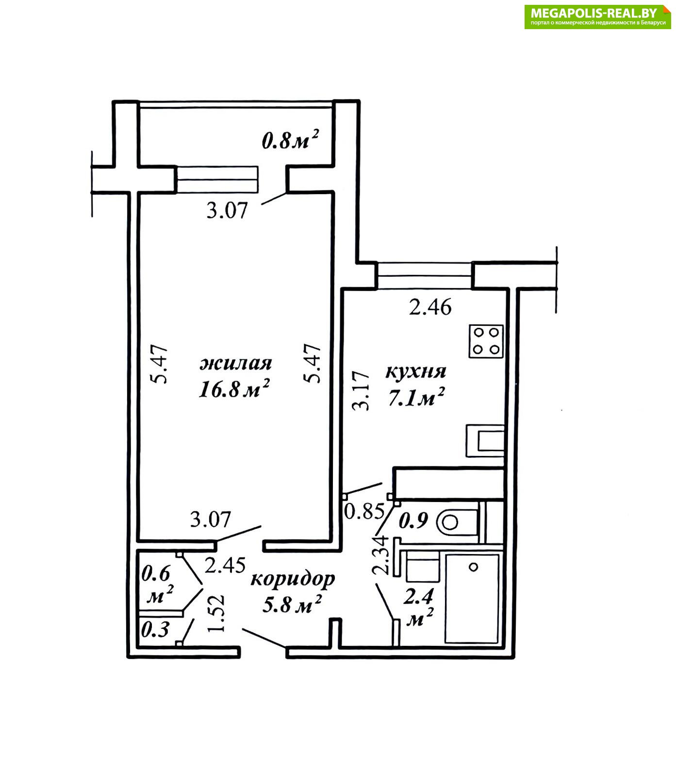
Площадь по СНБ - 34.7 м2, жилая - 16.8 м2, кухня - 7.1 м2.
Отличный вариант для тех, кто ищет квартиру в Минске с развитой инфраструктурой.
Квартира расположена на 2-ом этаже 9-этажного панельного дома 1987 года постройки.
В квартире установлены стеклопакеты ПВХ. Раздельный сан узел. Установлены счетчики учета воды, домофон, проведено оптоволокно.
Район полностью обустроен: во дворе дома детские сады, школа, рядом магазины, детская и взрослая поликлиники.
Остановки транспорта в шаговой доступности, до метро Кунцевщина 5 минут.
Недалеко парк Тивали, парк Космос, лесопарковая зона Медвежино.
Великолепные места для прогулок, пробежек, велопрогулок и отдыха с детьми.
Чистая продажа.
Звоните и записывайтесь на просмотр!
Общая площадь указана по СНБ.
Лицензия: №02240/362 МЮ РБ, 31.07.2018
- Регион: Минск и район
- Населенный пункт: г. Минск
- Микрорайон: Кунцевщина
- Адрес: Лещинского ул. д. 25
- Метро: Кунцевщина
- Район: Фрунзенский
- Контактное лицо: Павел
- Телефон: +375 29 626-28-96
- Телефон: +375 29 626-28-96
- Продажа квартиры


в избранное









































































