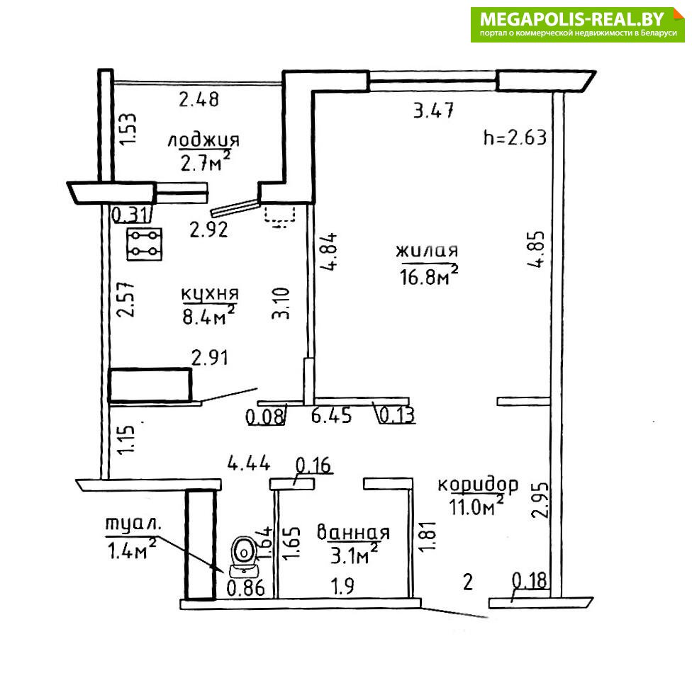
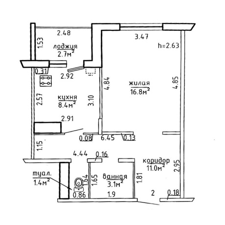
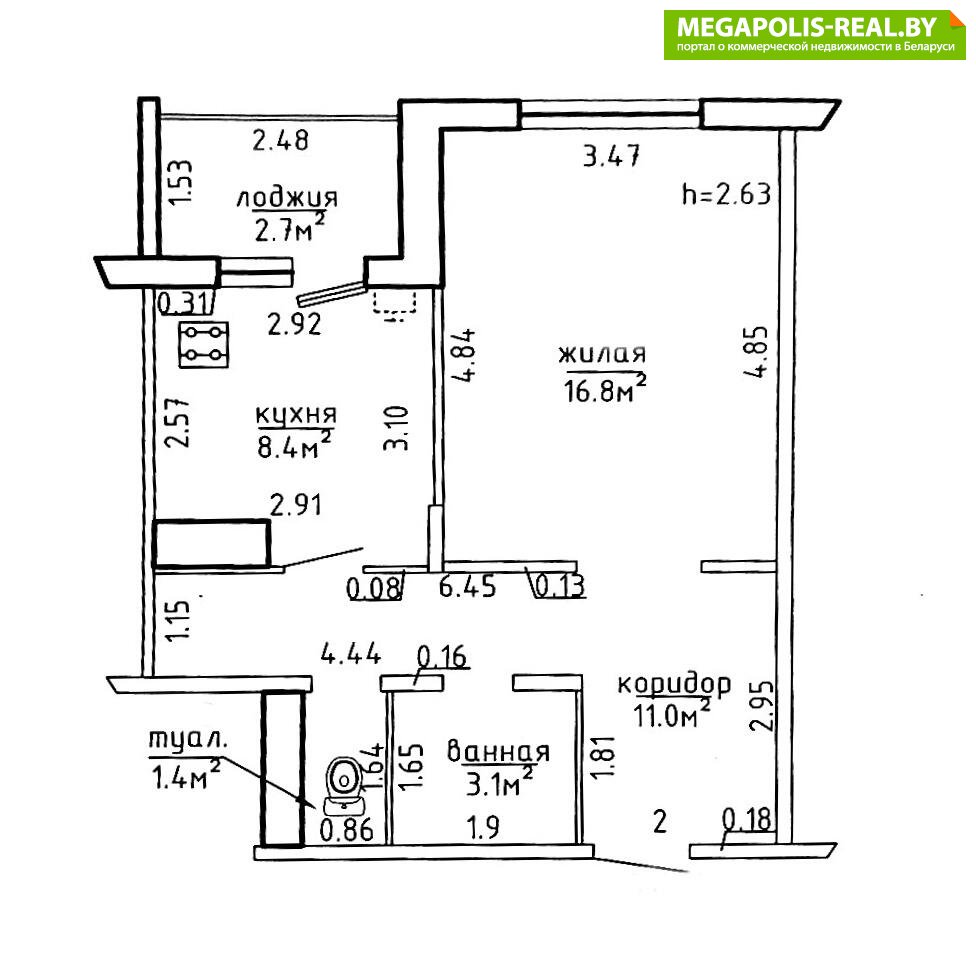
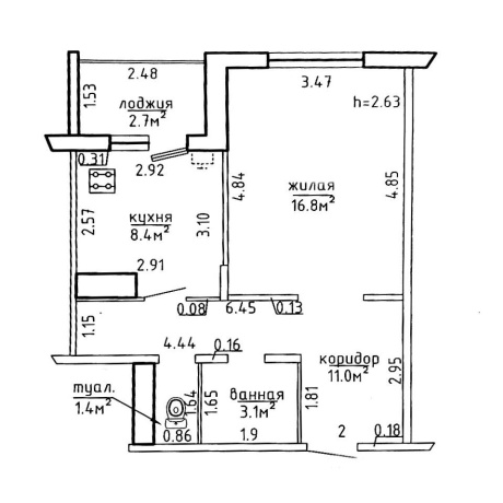
Продается квартира по адресу Майская ул. д. 8, аг. Прилуки
- Количество комнат: однокомнатная
- Этаж: 4 этаж из 9
- Санузел: раздельный
- Год постройки: 2016
Однокомнатная квартира по ул.Майская, 8
Просторная однокомнатная квартира. Кухня с выходом на лоджию. Оборудована гардеробная. При продаже остается кухонный гарнитур и встроенная мебель. Двухконтурный газовый котел обеспечивает автономную регулировку отопления и нет плановых отключений горячей воды.
На этаже есть кладовая.
Средний этаж. Очень ухоженный подъезд. Грузопассажирский лифт.
Дом расположен внутри квартала. Во дворе просторная оборудованная детская площадка.
Рядом 2 детских сада, амбулатория, кофейня. Несколько маленьких магазинов и Белмаркет.
До метро «Слуцкий гостинец» ходит несколько номеров автобусов и маршрутное такси. На авто до Минска 10 мин.
Чистая продажа. Ключи в день сделки.
Общая площадь указана по СНБ.
Лицензия: №02240/362 МЮ РБ, 31.07.2018
- Контактное лицо: Фаттория Плюс
- Телефон: +375 29 664-39-73
- Телефон: +375 29 664-39-73
- Продажа квартиры


в избранное














































