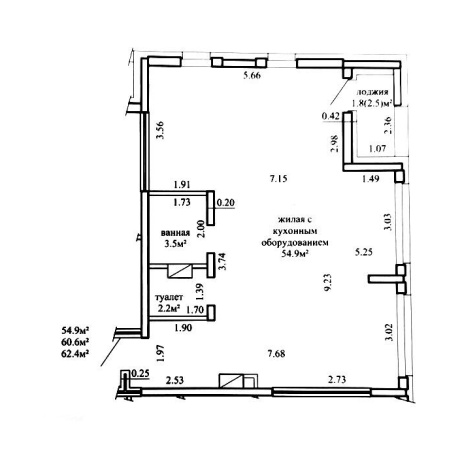
Продается квартира по адресу Жореса Алфёрова ул. д. 8, г. Минск
- Количество комнат: четырехкомнатная
- Этаж: 7 этаж из 10
- Санузел: раздельный
- Планировка: новостройка
- Год постройки: 2025
родается еврочетырешка в квартале Средиземноморский в современном ЖК Минск мир.Развитая инфраструктура, хорошее транспортное сообщение. 2 минуты пешком до метро Аэродромная и ТЦ АвиаМолл.
Общая площадь указана по СНБ.
Лицензия: №02240/362 МЮ РБ, 31.07.2018
- Регион: Минск и район
- Населенный пункт: г. Минск
- Жилой комплекс: Минск Мир
- Микрорайон: Минск Мир
- Адрес: Жореса Алфёрова ул. д. 8
- Метро: Аэродромная
- Район: Октябрьский
- Контактное лицо: Фаттория Плюс
- Телефон: +375 29 122-00-88
- Телефон: +375 29 122-00-88
- Продажа квартиры


в избранное

















































































