Продается квартира по адресу Мира просп. д. 1, г. Минск
- Количество комнат: трехкомнатная
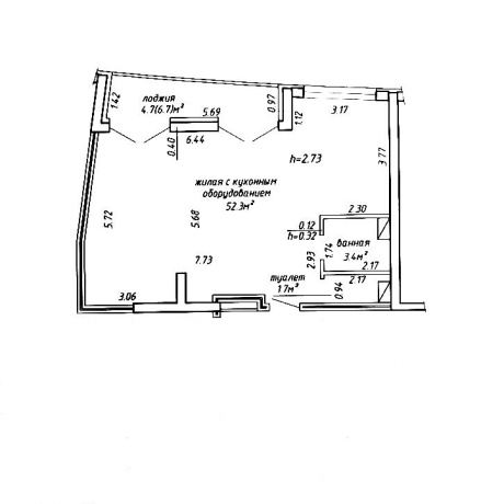
- Этаж: 13 этаж из 24
- Санузел: раздельный
- Планировка: новостройка
- Год постройки: 2020
Продается квартира в каркасно-блочном доме 2020г.п.
Площадь 62,1 по СНБ свободной планировки в квартале "Эмиратс»ЖК «Minsk World»
Пр.Мира,д.1 на 13 этаже
Просторное лобби, пандусы, эксклюзивный дизайн, гранитные полы, гранитные порталы лифтов, художественное оформление стен;
стойка рецепции для консьержа,
туалетная комната.
Удобное месторасположение.
Преимущества комплекса:
Международный финансовый центр;
Большой торгово-развлекательный центр;
Магазины, кафе, рестораны;
Зеленые бульвары;
Школы, детские сады;
Поликлиники, аптеки;
И др. объекты культурно-бытового обслуживания назначения
пересечение 2-х линий метрополитена, 2 станции метро(Аэродромная)
остановки общественного транспорта;
велодорожки и велополосы вдоль улиц;
парковки, стоянки для автомобилей.
Преимущество квартала:
квартал расположен в центральной части застройки;
в квартале
детские площадки;
спортивные площадки;
площадки отдыха;
Магазины
Кафе
по наружному контуру квартала – парковки для автомобилей;
с южной стороны квартала – Международный финансовый центр, торговый центр;
в прилегающих кварталах с западной стороны школа с бассейном
в квартале и прилегающих к нему кварталах расположены объекты культурно-бытового обслуживания.
Рядом остановочный пункт общественного транспорта,
Максимально удобно для Вас мы поможем решить Вашу ситуацию.
Подарите себе уникальную возможность уже сейчас приобрести квартиру, которая будет соответствовать Вашим желаниям. Для чего бы Вы ее не купили: для проживания, для сдачи в аренду, как инвестиции – это идеальный вариант вложения средств.
Общая площадь указана по СНБ.
Лицензия: №02240/362 МЮ РБ, 31.07.2018
- Регион: Минск и район
- Населенный пункт: г. Минск
- Жилой комплекс: Минск Мир
- Микрорайон: Минск Мир
- Адрес: Мира просп. д. 1
- Метро: Аэродромная
- Район: Октябрьский
- Контактное лицо: Фаттория Плюс
- Телефон: +375 29 122-00-88
- Телефон: +375 29 122-00-88
- Продажа квартиры


в избранное





























































































































