Продается квартира по адресу Брилевская ул. д. 35, г. Минск
- Количество комнат: трехкомнатная
- Этаж: 5 этаж из 25
- Санузел: раздельный
- Планировка: новостройка
- Год постройки: 2021
Предлагается к продаже готовая к проживанию 2-комнатная квартира в квартале Азия (ЖК «Минск Мир»).
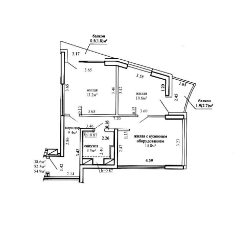
В квартире две изолированные комнаты с выходами на лоджию. Просторная кухня-гостиная 14.8 кв.м.с панорамными окнами. По всей квартире напольное покрытие ламинат премиум качества, санузел-плитка.
Дом 2021 г.п.
Квартира светлая, теплая, уютная.
Ухоженная придомовая территория.
Развитая инфраструктура.
Станция метро «Аэродромная» находится всего в 15 минутах езды от дома. В шаговой доступности, буквально в двух минутах ходьбы, расположена остановка общественного транспорта.
Квартира находится в благоустроенном престижном районе, в шаговой доступности расположены продуктовые магазины, аптеки, медицинские центры, детские сады, школы, стоматологические клиники, ветеринарная клиника, бассейн, отделения банков, и многое другое. Зелёный двор с закрытой территорией под видеонаблюдением с множеством вариантов для активного времяпрепровождения для взрослых и детей.
Поможем с продажей Вашей квартиры для приобретения этой!
Приглашаем на просмотр в удобное для вас время!
Торг уместен!
Лицензия: №02240/362 МЮ РБ, 31.07.2018
- Регион: Минск и район
- Населенный пункт: г. Минск
- Жилой комплекс: Минск Мир
- Микрорайон: Минск Мир
- Адрес: Брилевская ул. д. 35
- Метро: Аэродромная
- Район: Октябрьский
- Контактное лицо: Фаттория Плюс
- Телефон: +375 29 761-70-71
- Телефон: +375 29 761-70-71
- Продажа квартиры


в избранное





































































































































































































