Продается квартира по адресу Игоря Лученка ул. д. 16, г. Минск
- Количество комнат: однокомнатная
- Этаж: 11 этаж из 13
- Санузел: раздельный
- Планировка: новостройка
- Год постройки: 2025
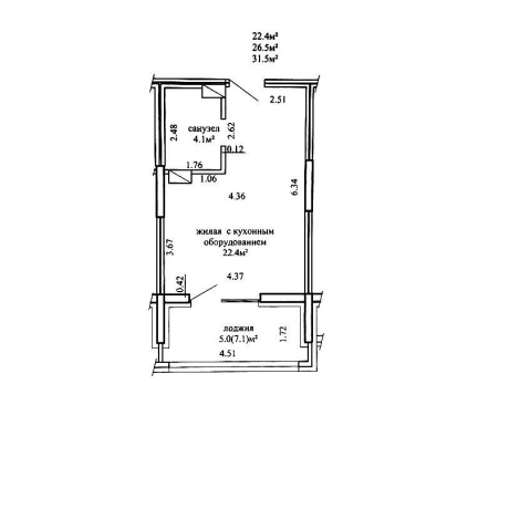
Предлагаем к продаже видовую студию на комфортном 11 этаже по улице Лученка 16.
Большая лоджия на всю ширину квартиры, можно обустроить под зону отдыха или рабочий кабинет.
Санузел совмещен. Отличная локация. Всего в пару минут ходьбы станция метро Аэродромная.. МФЦ.
Чистая продажа. Быстрый выход на сделку.
Площадь указана по СНБ.
Лицензия: №02240/362 от 31.07.2018, Министерство юстиции РБ.
- Регион: Минск и район
- Населенный пункт: г. Минск
- Жилой комплекс: Минск Мир
- Микрорайон: Минск Мир
- Адрес: Игоря Лученка ул. д. 16
- Метро: Аэродромная
- Район: Октябрьский
- Контактное лицо: Фаттория Плюс
- Телефон: +375 29 122-00-88
- Телефон: +375 29 122-00-88
- Продажа квартиры


в избранное




























































































