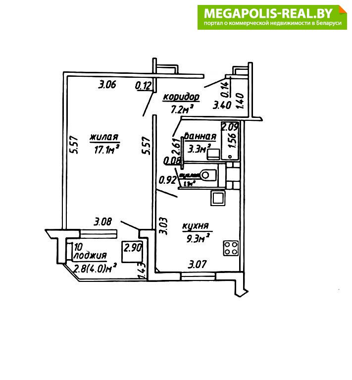
Продается квартира по адресу Рогачевская ул. д. 10 к. в, г. Минск
- Количество комнат: однокомнатная
- Этаж: 7 этаж из 10
- Санузел: раздельный
- Год постройки: 2012
Продаём просторную однокомнатную квартиру в тихом месте, улица Рогочевская дом 10В.Дом 2012 года постройки, строился для служащих и работников МВД, поэтому соседи у вас точно будут хорошие.Квартира на седьмом этаже, южная сторона, поэтому всегда будет тепло и солнечно.Продаётся в таком состоянии и с той мебелью которую видите на фото, отлично подойдёт под аренду и для старта жизни в столице. Вся инфраструктура в пешей доступности, показываем в любое время, продадим вашу недвижимость для покупки этой квартиры.
Площадь указана по СНБ.
Лицензия: №02240/362 МЮ РБ, 31.07.2018
- Регион: Минск и район
- Населенный пункт: г. Минск
- Адрес: Рогачевская ул. д. 10 к. в
- Район: Первомайский
- Контактное лицо: Виктория
- Телефон: +375 44 502-10-03
- Телефон: +375 44 502-10-03
- Продажа квартиры


в избранное


































