Продается квартира по адресу Рокоссовского просп. д. 84, г. Минск
- Количество комнат: однокомнатная
- Этаж: 4 этаж из 9
- Санузел: раздельный
- Год постройки: 1974
Однокомнатная квартира с ремонтом
на ул. Рокоссовского, 84 – превосходная локация!
Квартира находится рядом с перекрестком Рокоссовского – Плеханова. Удобное транспортное сообщение позволяет быстро доехать в любую точку города. Большое количество автобусов, троллейбусов, маршруток, и трамвайные пути рядом. До метро "Партизанская" 8 минут.
Квартира светлая, уютная, в отличном состоянии и полностью готова к заселению. Не требует дополнительных вложений, так как выполнен свежий современный ремонт.
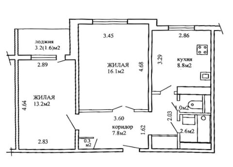
Удобная планировка: просторная комната 16,9м.кв. и отдельная кухня 7,06м.кв.
установлены стеклопакеты ПВХ;
на полу: плитка, в комнате - ламинат.
санузел-раздельный, уложена свежая современная плитка.
есть 2-шкафа-купе, которые помогут вам сэкономить место при обустройстве.
идеальный 4 этаж из 9, в панельном доме с лифтом.
дверь входная металлическая;
В тамбуре всего лишь 2 квартиры. Хорошие соседи.
Дом 1974 года, после капремонта. Все коммуникации заменены. Установлены счётчики на газ и воду.
Для тех, кто ценит комфорт: район обжитой, всё в шаговой доступности.
Инфраструктура:
- детские сады и школы, гимназия №1 им. Ф. Скорины, с математическим уклоном и иностранными языками;- в шаговой доступности 23-я и 18 городские поликлиники и 14-я стоматологическая, 7-я детская поликлиника;- кинотеатр «Салют», аптеки, банки, магазины: «Санта», «Марко», «Гиппо» и др.
-рынок «Серебрянка» (2 минуты пешком – это так удобно!), рынок «Свелта»;
Серебрянка - экологически чистый район. Отличное качество воды и обилие зеленых зон (парк им.Н.Г.Грековой, Чижовское водохранилище, Слепянская водная система, р.Свислочь, Лошицкий парк, велодорожка), позволят вам заботится о своем здоровье в полной мере.
Превосходное транспортное сообщение, а также быстрый выезд на МКАД.
Это отличный вариант как для проживания, так и для сдачи в аренду. (Всего пару остановок до университета БГЭУ)
Звоните, ждём на просмотр. Вам понравится!
Лицензия: №02240/362 МЮ РБ, 31.07.2018
- Регион: Минск и район
- Населенный пункт: г. Минск
- Адрес: Рокоссовского просп. д. 84
- Район: Ленинский
- Контактное лицо: Ольга
- Телефон: +375 29 245-74-39
- Телефон: +375 29 245-74-39
- Продажа квартиры


в избранное













































