Продается квартира по адресу Рокоссовского просп. д. 121, г. Минск
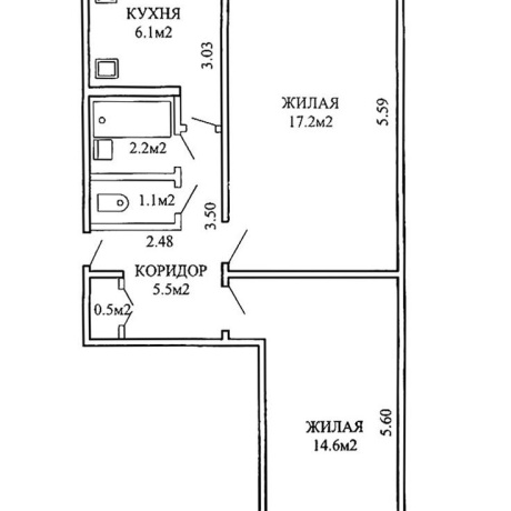
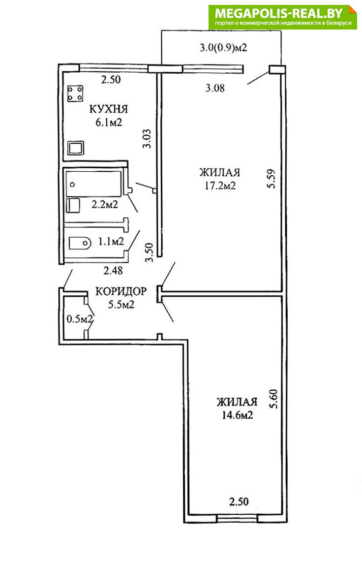
- Количество комнат: двухкомнатная
- Этаж: 1 этаж из 5
- Санузел: раздельный
- Год постройки: 1970
Двухкомнатная квартира в самом зелёном районе Минска!
1эт / 5эт
СНБ - 48,1 м2 / общая -47,2 м2 / жилая - 31,8м2 / кухня - 6,1м2
О квартире:
- Квартира укомплектована мебелью и техникой для проживания
- Раздельные жилые комнаты (17,2м2 и 14,6м2)
- Окна квартиры выходят на две стороны (восток и запад)
- Стеклопакеты ПВХ
- Балкон застеклён
- Шкаф-купе
- Домофон
- Оптоволокно
- Чистый подъезд
- Подвал
- Зелёный двор
- В шаговой доступности поликлиника
- Отличная инфраструктура
- Слепянская водная система – 350м
- Парк им. Н.Г.Грековой – 400м
Идеальный вариант для семьи, которая ценит спокойную жизнь в мегаполисе, любит пешие и велопрогулки, занятия спортом!
Чистая продажа!
Лицензия: №02240/362 от 31.07.2018, Министерство юстиции РБ
- Регион: Минск и район
- Населенный пункт: г. Минск
- Микрорайон: Серебрянка
- Адрес: Рокоссовского просп. д. 121
- Метро: Партизанская
- Район: Ленинский
- Контактное лицо: Фаттория Плюс
- Телефон: +375 29 122-00-88
- Телефон: +375 29 122-00-88
- Продажа квартиры


в избранное







































