Продается квартира по адресу Рокоссовского просп. д. 12 к. 1, г. Минск
- Количество комнат: двухкомнатная
- Этаж: 10 этаж из 12
- Санузел: раздельный
- Год постройки: 1981
Отличная двухкомнатная квартира в самом зеленом районе г. Минска!
Дом после капитального ремонта, утеплен!
Квартира расположена на десятом этаже двенадцатиэтажного дома.
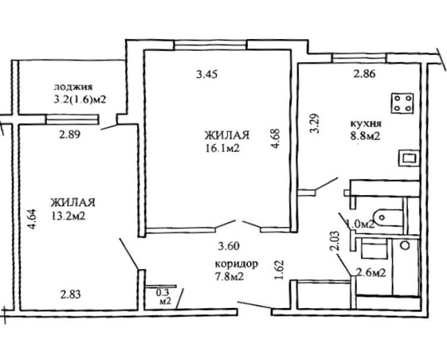
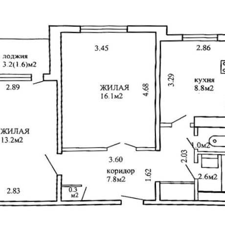
Квартира с улучшенной рациональной планировкой: две раздельные комнаты 13, 2 кв.м с выходом на застекленную лоджию 3.2 кв.м. и 16.1 кв.м, большая кухня 8.8 кв.м., просторный коридор 7.8 кв.м, раздельный санузел.
Квартира теплая, светлая, окна выходят на юго-запад!
Окна ПВХ, металлическая входная дверь.
В подъезде произведена замена лифта, выполнен косметический ремонт.
Хорошо развита инфраструктура: множество магазинов, банки, школы, гимназии, детские сады, поликлиники, Аква-Минск клиника, ФОК Серебрянка (бани, бассейн, СПА процедуры, тренажёрный зал).
Отличное транспортное сообщение: множество наземного транспорта (автобусы, троллейбусы, трамваи). До станции метро Первомайская 10 мин. на общественном транспорте.
Достаточно мест для парковки автомобилей!
Рядом с домом главная велодорожка Минка.
Удобный выезд на МКАД!
Поможем с продажей Вашей квартиры для приобретения этой!
Приглашаем на просмотр в удобное для вас время!
Торг уместен!
Общая площадь указана по СНБ.
Лицензия: №02240/362 МЮ РБ, 31.07.2018
- Регион: Минск и район
- Населенный пункт: г. Минск
- Микрорайон: Серебрянка
- Адрес: Рокоссовского просп. д. 12 к. 1
- Метро: Партизанская
- Район: Ленинский
- Контактное лицо: Марина
- Телефон: +375 29 193-88-72
- Телефон: +375 29 193-88-72
- Продажа квартиры


в избранное































