Продается квартира по адресу Леонида Щемелёва ул. д. 14, г. Минск
- Количество комнат: трехкомнатная
- Этаж: 13 этаж из 19
- Санузел: раздельный
- Планировка: новостройка
- Год постройки: 2025
Продаётся современная квартира с ремонтом и мебелью возле метро.
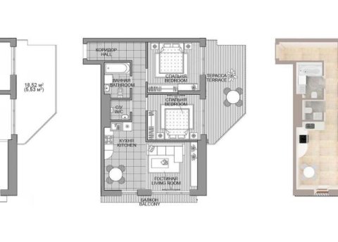
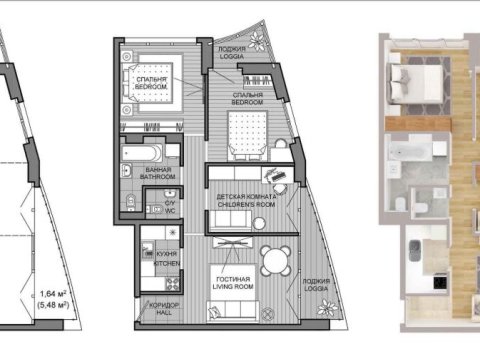
-Общая площадь указана по СНБ (с учётом лоджий)- 43,2м2
-Панорамное остекление создаёт лёгкость и большое количество света в помещении.
-Квартира очень удачной планировки, расположена на комфортном 13-ом этаже 19-этажного дома.
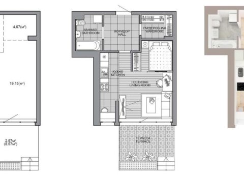
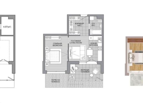
-Планировка включает две жилые изолированные комнаты: одна комната с выходом на застеклённую лоджию, кухню-гостиную с выходом на открытую террасу, совмещённый санузел.
-Ремонт выполнен с применением качественных материалов.
-Пол в жилой комнате и кухне выполнен из качественного ламината, уложенного на премиальную пробковую подложку (5мм), что делает его теплее и уютнее. А также избавляет ваших соседей снизу от возможного лишнего шума.
-В прихожей и санузле – широкоформатный керамогранит.
-Современная кухня со встроенной техникой: духовой шкаф, электрическая варочная панель, вытяжка, холодильник, посудомоечная машина.
- Квартира укомплектована мебелью, выполненной на заказ; кровать 160см.; два диван имеют полноценное двуспальное место; продумано большое количество мест для хранения.
-По всей квартире грамотная разводка электричества, имеется оптоволокно.
-Вся мебель и техника остается в квартире при продаже.
-Автомобилисты также комфортно смогут не только доехать до дома, но и найти свободное парковочное место на уличной парковке.
-Идеальный вариант для тех, кто ценит комфорт жизни в городе и развитую инфраструктуру.
-Данная квартира не только комфортна для проживания или сдачи в аренду, а также и выгодная инвестиция для ваших сбережений.
-Звоните, приходите на показ и убедитесь лично!
-Чистая продажа.
-Ключи в день сделки.
Удачно расположенный квартал:
-В нескольких минут от дома находиться станция метро «Аэродромная», а также крупный торгово-развлекательный центр "Avia Mall".
-Красивый подъезд, два скоростных лифта (один из которых панорамный), колясочная, место для обмена литературой.
-Современные детские площадки.
-В квартале запланировано строительство детского сада с бассейном.
-Квартира вашей мечты ждёт Вас!
Лицензия: №02240/362 от 31.07.2018, Министерство юстиции РБ.
- Регион: Минск и район
- Населенный пункт: г. Минск
- Жилой комплекс: Минск Мир
- Микрорайон: Минск Мир
- Адрес: Леонида Щемелёва ул. д. 14
- Метро: Аэродромная
- Район: Октябрьский
- Контактное лицо: Наталья
- Телефон: +375 29 959-75-93
- Телефон: +375 29 959-75-93
- Продажа квартиры


в избранное





























































































































































