Продается квартира по адресу Савицкого ул. д. 1, г. Минск
- Количество комнат: двухкомнатная
- Этаж: 7 этаж из 17
- Санузел: раздельный
- Планировка: новостройка
- Год постройки: 2021
Просторная, светлая двухкомнатная квартира без отделки в доме 2021года постройки.
ЖК «Минск Мир». Дом «Каир». По адресу: ул. Михаила Савицкого д.1.
На первом этаже располагается просторное дизайнерское лобби с зоной отдыха, санитарная комната. Вход в лобби сквозной. Подъезд оснащен малошумными скоростными лифтами.
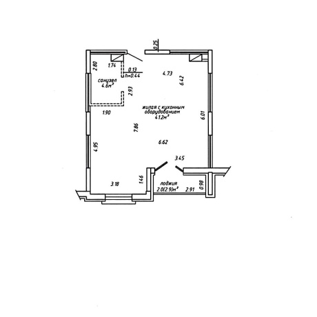
Идеальная светлая квартира с двумя окнами и свободной планировкой-это позволит обустроить удобное и функциональное пространство в соответствии с Вашими запросами, воплотить в реальность самые смелые дизайнерские идеи. Застекленная лоджия с панорамными окнами, из которой открывается отличный вид. Соседние дома расположены на значительном расстоянии. Наличие панорамных окон обеспечивает ощущение простора и изобилия естественного света.
Общая площадь по СНБ 47,8 кв.м. Общая площадь 45,8 кв.м. Высота потолка
2,74 м.
Почувствуйте преимущества:
• Дом 2021 года. Выбирайте комфорт, а не стройку: во всем доме уже
завершены ремонты, шум и пыль остались в прошлом.
• Ваш этаж: 7-й. Идеальная высота для тишины и потрясающих видов!
Панорамные окна открывают светлую перспективу на современный,
ухоженный двор.
• Свободное пространство. Гибкий функционал, планировка легко адаптируется под ваши задачи и стиль жизни. Вы сами планируете, какого цвета у Вас будут стены и сами расставляете мебель.
Дом расположен в полностью обжитом районе с развитой инфраструктурой. В шаговой доступности находятся магазины, аптеки, кафе, школы, детские сады и все необходимое для комфортной жизни.
Удобное транспортное сообщение, рядом остановки общественного транспорта, станции метро «Ковальская Слобода» и «Аэродромная».
Покажем в удобное для Вас время.
Лицензия: 02240/446 от 11.07.2022, Министерство юстиции РБ
- Регион: Минск и район
- Населенный пункт: г. Минск
- Жилой комплекс: Минск Мир
- Микрорайон: Минск Мир
- Адрес: Савицкого ул. д. 1
- Метро: Аэродромная
- Район: Октябрьский
- Контактное лицо: Татьяна
- Телефон: +375 44 703-94-99
- Телефон: +375 44 703-94-99
- Продажа квартиры


в избранное































































































































































