Продается квартира по адресу Игоря Лученка ул. д. 15, г. Минск
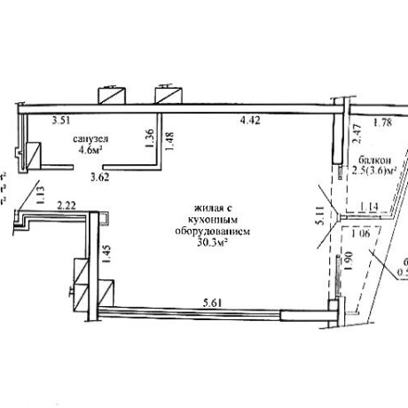
- Количество комнат: однокомнатная
- Этаж: 15 этаж из 25
- Санузел: раздельный
- Планировка: новостройка
- Год постройки: 2025
Квартира в «Бухаресте»!
Улица Лученка дом 15. Самый свежий новострой в Минск Мире, самая классная планировка из всех однокомнатных, два балкона, открытый и закрытый, на котором легко располагается chill-зона или кабинет.
Продаём чистой продажей, поможем продать вашу квартиру для покупки этой, показываем в любое время.
- Регион: Минск и район
- Населенный пункт: г. Минск
- Жилой комплекс: Минск Мир
- Микрорайон: Минск Мир
- Адрес: Игоря Лученка ул. д. 15
- Метро: Аэродромная
- Район: Октябрьский
- Контактное лицо: Виктория
- Телефон: +375 44 502-10-03
- Телефон: +375 44 502-10-03
- Продажа квартиры


в избранное
















































































































































































