Продается квартира по адресу Жореса Алфёрова ул. д. 3, г. Минск
- Количество комнат: однокомнатная
- Этаж: 14 этаж из 21
- Санузел: раздельный
- Планировка: новостройка
- Год постройки: 2024
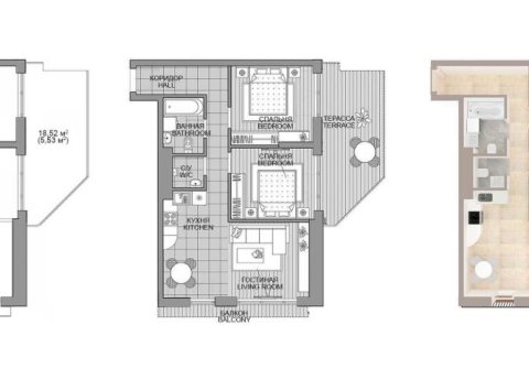
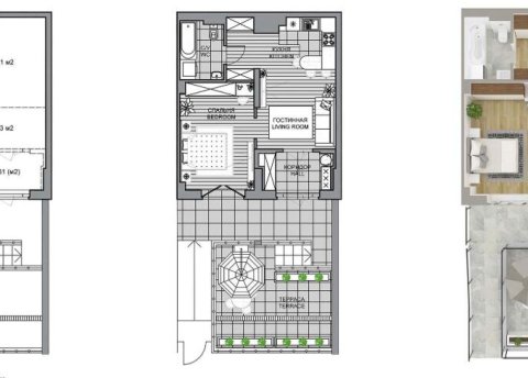
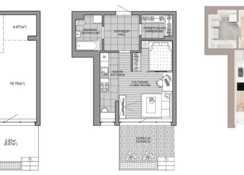
Продается светлая и просторная квартира в ЖК «Минск-Мир», площадью 60,6 м2, без отделки, что предоставляет уникальную возможность создать пространство, соответствующее вашим индивидуальным предпочтениям. Квартира расположена на 14-м этаже 21-этажного дома «Сантьяго» в квартале «Южная Америка», который выделяется современным архитектурным стилем и оригинальным оформлением фасадов.
Панорамные окна наполняют квартиру светом и открывают великолепный вид на город. Также имеется просторная остекленная лоджия и стильный треугольный балкон.
Комплекс предлагает комфортное лобби с лаунж-зоной, консьержем, туалетом с пеленальным столиком и лапомойкой для домашних животных. В здании установлены три бесшумных скоростных лифта (пассажирский, грузовой и панорамный), а также система видеонаблюдения по периметру. Входы в лобби оборудованы домофоном с функцией распознавания лиц и отпечатков пальцев.
На благоустроенной придомовой территории есть игровая площадка для детей, велопарковка и множество других удобств. В шаговой доступности находятся магазины, кафе, аптеки, банки, школа и строящийся детский сад, а также поликлиники и крытые паркинги. Спортивные площадки для футбола, тенниса и баскетбола, велодорожки и беговые дорожки создают отличные условия для активного отдыха.
В нескольких минутах ходьбы находится запланированный большой парк. Автобусная остановка расположена рядом с домом. Метро «Аэродромная» и крупнейший торгово-общественный центр Avia Mall находятся всего в 700 метрах. В Avia Mall вы найдете гипермаркет Green, фуд-корт, кинотеатр и множество мест для отдыха. Международный финансовый центр с самым высоким зданием страны находится всего в 800 метрах.
Квартира станет идеальным выбором для тех, кто ценит комфорт, простор и современный городской стиль жизни!
Площадь указана по СНБ.
Работаем с различными видами кредитования:
- Система строительных сбережений от Беларусбанка;
-Семейный капитал;
-Ипотечное кредитование и все виды кредитования на покупку недвижимости.
А также:
-Подыщем выгодный для Вас банк;
-Поможем продать вашу недвижимость для покупки этой.
Напишите нам в удобный для Вас мессенджер:
Viber | Telegram | WhatsApp
Ответим на Ваши вопросы, предоставим всю необходимую информацию.
ООО «Артель Недвижимость»
УНП 193820882
Лицензия Министерства Юстиции №48250000081913 от 06.03.2025 г.
Договор № 684/2 от 25.11.2025
- Регион: Минск и район
- Населенный пункт: г. Минск
- Жилой комплекс: Минск Мир
- Микрорайон: Минск Мир
- Адрес: Жореса Алфёрова ул. д. 3
- Метро: Аэродромная
- Район: Октябрьский
- Контактное лицо: Недвижимость
- Телефон: +375 29 533-80-44
- Телефон: +375 29 533-80-44
- Продажа квартиры


в избранное















































































































































































