Продается квартира по адресу Бирюзова ул. д. 17, г. Минск
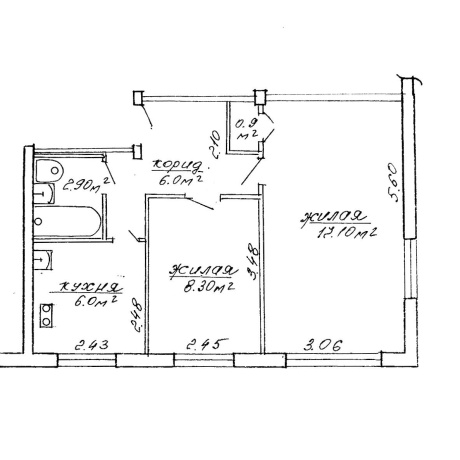
- Количество комнат: двухкомнатная
- Этаж: 1 этаж из 5
- Санузел: раздельный
- Год постройки: 1964
Продается 2-х комнатная квартира рядом с метро Бирюзова 17
Двухкомнатная квартира в пешей доступности от метро Пушкинская и Молодёжная!
- Площадь квартиры: общая 41,4 кв.м., жилая 25,6 кв.м., кухня 6,0 кв.м.
- Квартира требует ремонта. Это возможность обновить пространство и сделать его полностью соответствующим вашим представлениям о комфорте.
- Санузел совмещённый. Такое решение упрощает перепланировку и позволяет компактно разместить сантехнику и технику.
- Дом панельный, построен в 1964 году. В 2005 году был проведён капитальный ремонт. Квартира расположена на 1 этаже 5-этажного дома.
- Рядом находятся различные магазины, аптеки, банки, школы, детские сады, заведения общественного питания и пункты выдачи заказов. Всё необходимое в шаговой доступности.
- Транспортная инфраструктура отличная: в 3 минутах ходьбы остановка общественного транспорта, в 14 минутах станции метро «Пушкинская» и «Молодёжная». Отсюда легко добраться как до центра, так и до других районов Минска.
Звоните, с удовольствием организуем для Вас показ!
Лицензия: 02240/446 МЮ РБ, 11.07.2022
- Регион: Минск и район
- Населенный пункт: г. Минск
- Микрорайон: Раковское шоссе
- Адрес: Бирюзова ул. д. 17
- Метро: Пушкинская
- Район: Фрунзенский
- Контактное лицо: Светлана
- Телефон: +375 29 111-90-90
- Телефон: +375 29 111-90-90
- Продажа квартиры


в избранное




















