Продается квартира по адресу Кабушкина ул. д. 98, г. Минск
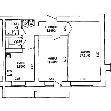
- Количество комнат: двухкомнатная
- Этаж: 7 этаж из 9
- Санузел: раздельный
- Год постройки: 1981
2-х комнатная квартира в кирпичном доме - ул.Кабушкина д.98
Кирпичный дом. В 2023 году произведён капитальный ремонт дома.
Квартира в удовлетворительном состоянии. Здесь можно воплотить свои смелые творческие решения в дизайне!
Инфраструктура соответствует всем требованиям комфортной жизни: детские сады, школы, множество магазинов, медицинские и спортивные учреждения, объекты сервисного обслуживания и досуга - в шаговой доступности. В непосредственной близости многофункциональный спортивно-развлекательный комплекс "Чижовка-Арена", кинотеатр "Салют", зоопарк.
Рядом с домом множество мест для прогулок и отдыха: парк семейных деревьев и им.900-летия г. Минска, набережная реки Свислочь и Чижовское водохранилище.
Отличное транспортное сообщение. До станции метро "Автозаводская" 3 остановки на общественном транспорте.
Общая площадь указана по СНБ.
Лицензия: 02240/446 МЮ РБ, 11.07.2022
- Регион: Минск и район
- Населенный пункт: г. Минск
- Адрес: Кабушкина ул. д. 98
- Район: Заводской
- Контактное лицо: Фаттория
- Телефон: +375 29 190-00-88
- Телефон: +375 29 190-00-88
- Продажа квартиры


в избранное


























